2-к, Кузнецкая, 7 Показать на карте
Мыски
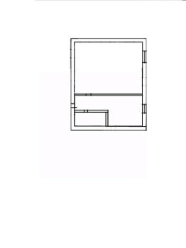
Продается двухкомнатная квартира общей площадью 43,2 кв. м на первом этаже пятиэтажного панельного дома по адресу: Россия, Кемеровская область, Мыски, Кузнецкая улица, 7. Дом был построен в 1970 году. Квартира без ремонта, поэтому у вас есть отличная возможность реализовать свои дизайнерские идеи и создать пространство по своему вкусу. Жилая площадь квартиры разделена на две комнаты, что позволяет удобно зонировать пространство и организовать комфортное проживание. Кухня площадью 4,5 кв. м — это уютное место для семейных завтраков и обедов. Окна выходят на улицу, что обеспечивает хорошее естественное освещение в течение дня.Дом находится в хорошем состоянии. Благодаря панельной конструкции, в нем тепло в холодное время года. Вблизи дома расположены все необходимые объекты инфраструктуры: школы, детские сады и магазины, что делает его удобным для семей с детьми. Хорошая транспортная доступность и близость к остановкам общественного транспорта позволяют быстро добраться до нужного места.Квартира продается без обременений, все документы готовы к сделке. Возможна покупка в ипотеку. Это отличная возможность для тех, кто хочет приобрести жилье по доступной цене и сделать его уютным домом для своей семьи.Звоните и записывайтесь на просмотр! Мы с удовольствием покажем вам эту замечательную квартиру и ответим на все ваши вопросы.
43 м2
1 / 5 этаж
Панель
- Показать контакты
- Добавить в избранное
43 м2
1 / 5 этаж
Панель
2 900 000
67 130 /м2
