Если цена в объявлении изменится, мы сразу сообщим вам об этом на электронную почту.
Нажимая «Подписаться», вы соглашаетесь с правилами.
продам дом, Бениваленского, 10а1 850 000 ₽
19 июня 2025
Дата публикации объявления
Обн. 12 апр
Дата обновления объявления
56 061 ₽/м²
Чистая продажа
Термин "Чистая продажа" означает, что в квартире никто не прописан или
есть куда выписаться и вывезти вещи. Это лучший вариант для покупателя.
Вероятность срыва сделки минимальна.
Этажей1
Площадь участка27 соток
Общая площадь33 м2
Материал домакирпич
ЭлектричествоЕсть
Код объекта: 1639041. Уникальное предложение для тех, кто мечтает о собственном доме в живописном месте! Продаётся уютный кирпичный дом в селе Поломошное Яшкинского муниципального округа Кемеровской области. Всего в трех километрах от города Юрга, что позволит Купить в собственность и использовать как дачу в экологически чистом районе.
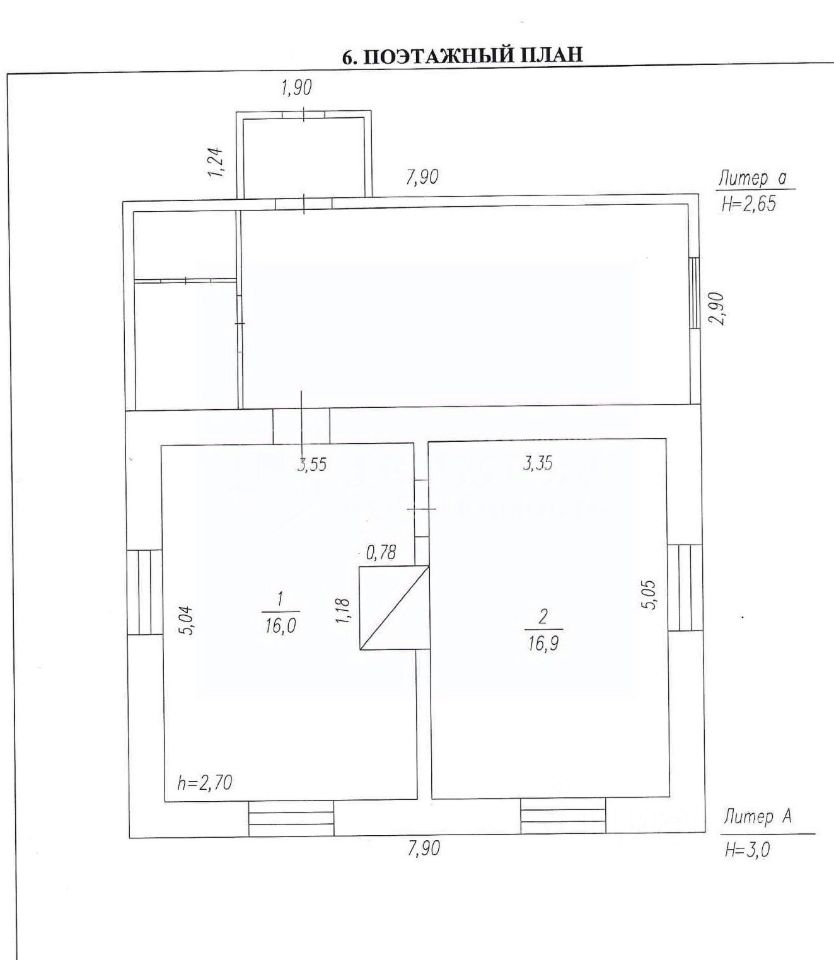
Дом построен в 1992 году и имеет общую площадь 32,9 кв. м. Жилая площадь распределена между двумя комнатами размером 16 и 16,9 кв. м, что делает его идеальным выбором для небольшой семьи или одинокого человека. Кухня площадью 16 кв. м предоставляет достаточно места для приготовления пищи. В доме проведена новая канализация.
Код объекта: 1639041. Уникальное предложение для тех, кто мечтает о собственном доме в живописном месте! Продаётся уютный кирпичный дом в селе Поломошное Яшкинского муниципального округа Кемеровской области. Всего в трех километрах от города Юрга, что позволит Купить в собственность и использовать как дачу в экологически чистом районе.
Дом построен в 1992 году и имеет общую площадь 32,9 кв. м. Жилая площадь распределена между двумя комнатами размером 16 и 16,9 кв. м, что делает его идеальным выбором для небольшой семьи или одинокого человека. Кухня площадью 16 кв. м предоставляет достаточно места для приготовления пищи. В доме проведена новая канализация.
Участок площадью 27 соток благоустроен и включает в себя баню, что добавляет дополнительное удобство для отдыха и релаксации. Подъезд к участку засыпан щебнем, а коммуникации включают электричество и водоснабжение.
Печное отопление обеспечивает эффективное и экономичное поддержание тепла в доме, что особенно важно в холодное время года. Дом подходит для круглогодичного проживания и имеет статус индивидуального жилищного строительства.
Не упустите шанс стать владельцем этого уютного дома в тихом и спокойном месте всего в 30 километрах от города. Звоните нам прямо сейчас, чтобы узнать больше и записаться на просмотр.
Мы гарантируем безопасную сделку и юридическую поддержку нашим Клиентам. Поможем одобрить ипотеку с сниженной ставкой.