АКТИВ плюс - торговые и офисные помещения в аренду и на продажу.
Все предложения от собственников, комиссии нет! Подберем помещение под Ваш запрос, звоните!
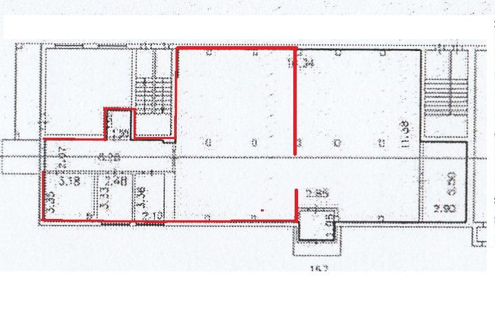
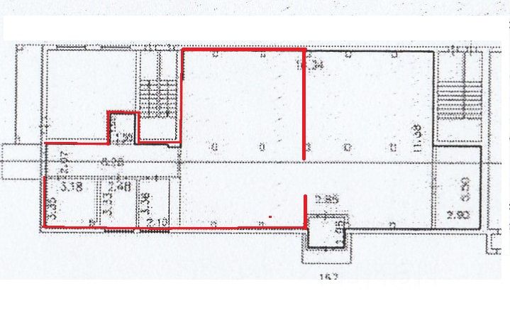
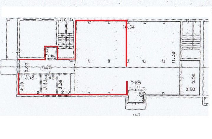
АРЕНДА! Торговое помещение 125 кв.м.
Расположение:
Ленинский район города Кемерово,
Окружение - жилая застройка,
Первый этаж жилого дома.
Парковка перед зданием.
Помещение:
Витринные окна,
2 входа, в том числе оборудованная зона разгрузки,
Вытяжка - согласована
Центральные водоснабжение и канализация,
2 сан узла
Возможно размещение пищевого производства.
АКТИВ плюс - коммерческая недвижимость, готовый бизнес, инвестиции.
Работаем для Вас с 2017 года!







