21 июля 2025
Обн. 11 мая
4
Новостройка, 1 кв. 2027
Продам 4-к, Дружбы, 10
Заводский район, Южный
Кемерово
10 467 504 ₽141 300 ₽ за м²
Чистая продажа
Квартира
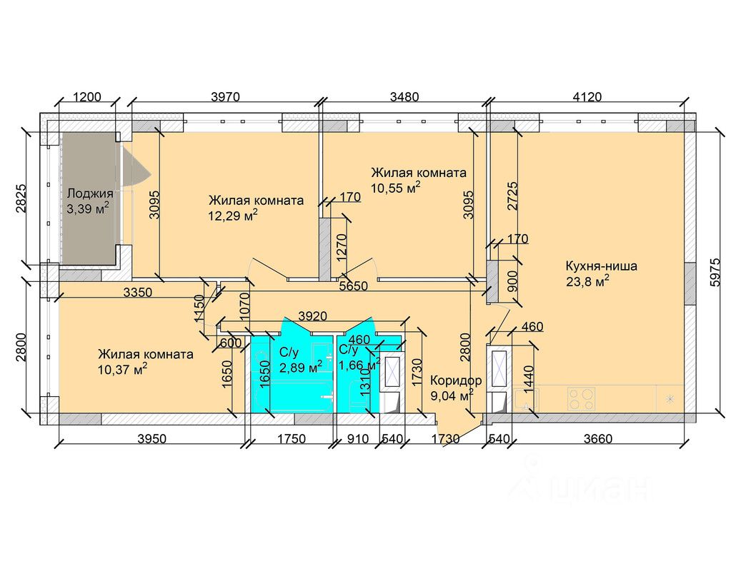
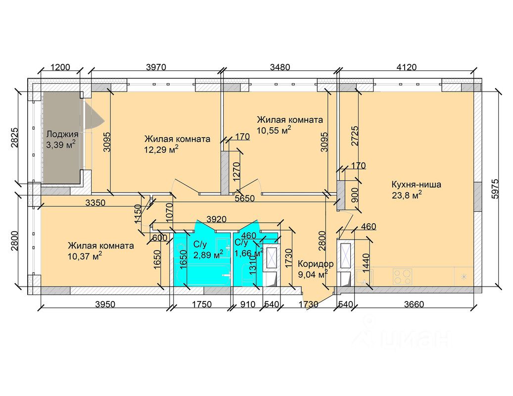
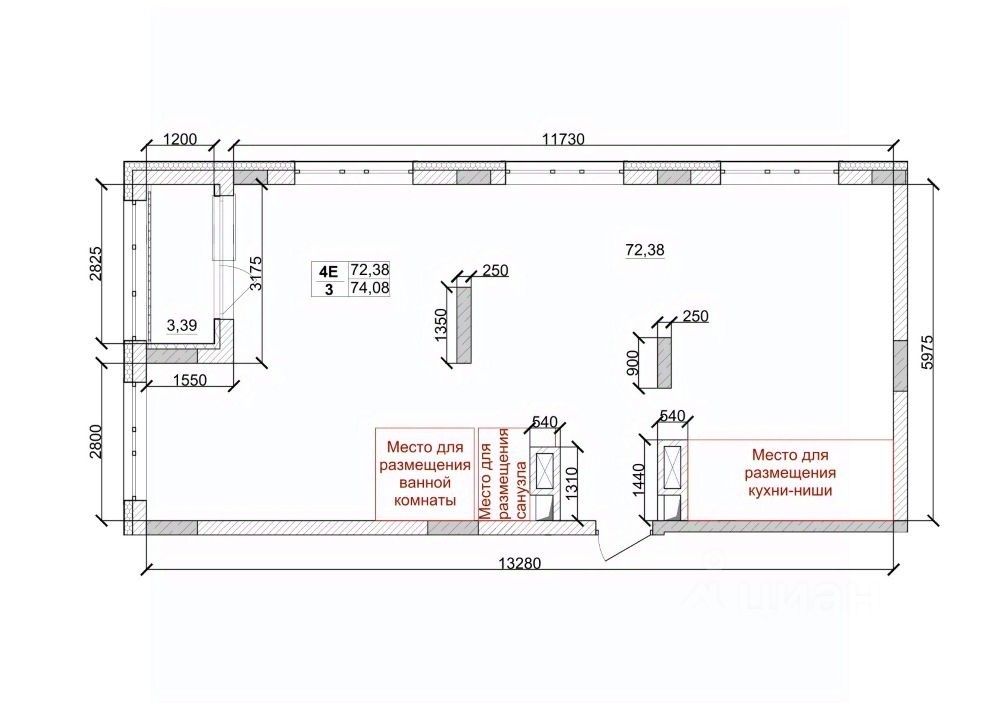
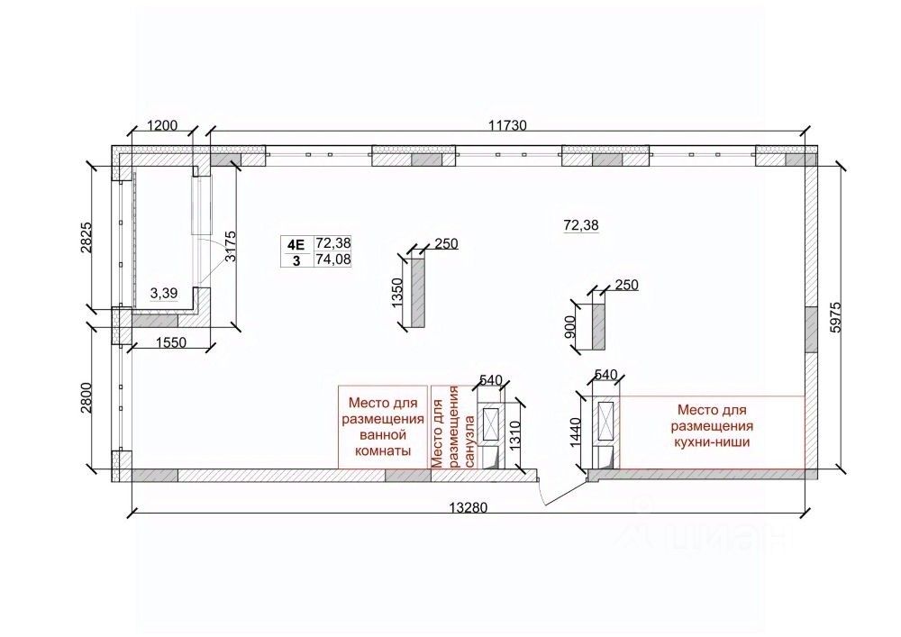
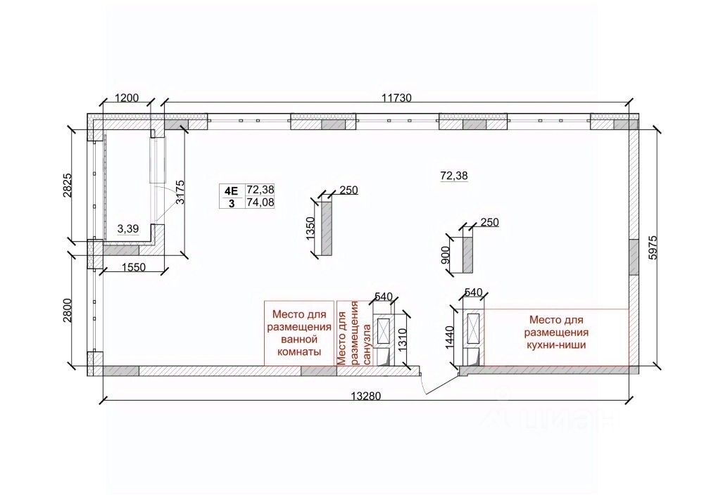
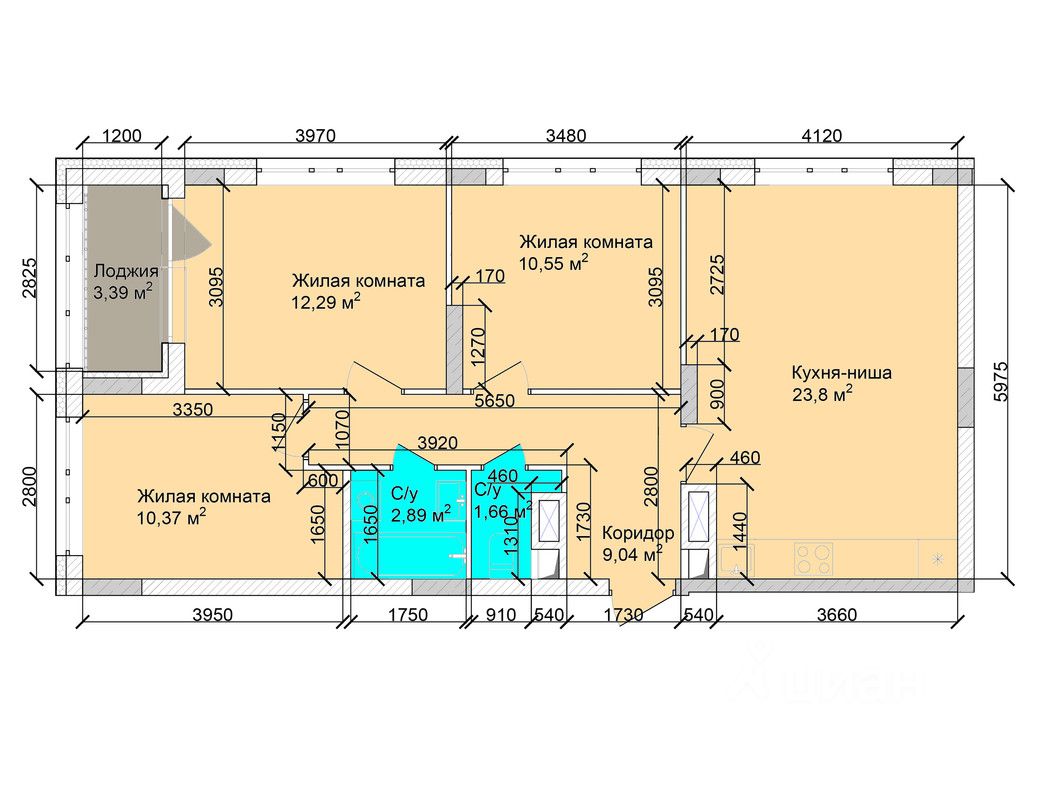
- Общая площадь74 м²
- Тип собственностидоговор долевого участия
Дом
- Срок сдачи1 кв. 2027
- Этаж5 из 15
- Материал домакирпич - монолит
Описание
Квартира от застройщика в ЖК ''7 ВЫСОТ'' - это полное сопровождение сделки без риелторов, комиссии с минимумом документов.
Контакты
Застройщик
КЛЮЧ 42
Внешний пользователь
№114613832
Ипотечный калькулятор
Стоимость
₽
Первый взнос
₽
Срок кредита
лет
Процентная ставка
Проц. ставка
%
Ежемесячный платеж
78 627 ₽
Мин. доход
142 958 ₽
Сумма кредита
8 897 379 ₽
Один запрос в 8 банков
+2
Узнайте за 10 минут, какую сумму кредита вам одобрят банки




