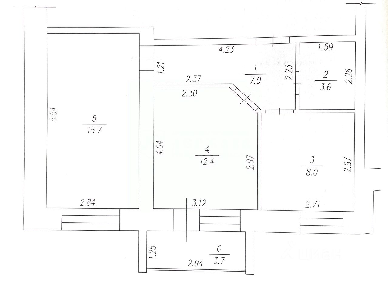
Код объекта: 1724259. Продаётся двухкомнатная квартира c ремонтом, в центре Яя. Подходит под материнский семейный капитал!! Комнаты все изолированные. Совмещённый санузел. Трубы пластик. Счетчики. В ванной установлен бойлер. Просторный коридор. Выровнены потолки и стены. На полу линолеум. Проводка медная. Окна все пластиковые. Застеклен балкон. Хорошая входная дверь. Квартира очень теплая, светлая. Толщина стен 0,6 метра. Хорошие соседи. В квартире выполнен качественный ремонт. Мебель и техника по согласованию (в зависимости от того, что оставят в покупаемой квартире). Дом кирпичный, 2014 года постройки. Дом очень теплый, чистые подъезды. Большая, чистая дворовая территория, с множеством парковочных мест.
Код объекта: 1724259. Продаётся двухкомнатная квартира c ремонтом, в центре Яя. Подходит под материнский семейный капитал!! Комнаты все изолированные. Совмещённый санузел. Трубы пластик. Счетчики. В ванной установлен бойлер. Просторный коридор. Выровнены потолки и стены. На полу линолеум. Проводка медная. Окна все пластиковые. Застеклен балкон. Хорошая входная дверь. Квартира очень теплая, светлая. Толщина стен 0,6 метра. Хорошие соседи. В квартире выполнен качественный ремонт. Мебель и техника по согласованию (в зависимости от того, что оставят в покупаемой квартире). Дом кирпичный, 2014 года постройки. Дом очень теплый, чистые подъезды. Большая, чистая дворовая территория, с множеством парковочных мест. В шаговой доступности магазины (Магнит, Ярче), магазин одежды, кафе-столовая, гостиница, аптека, администрация Яя, пожарная часть, спорткомплекс, два садика, школа и многое другое для Вашего комфортного проживания. Долгов и обременений нет. Перепланировок нет. Готовы рассмотреть вариант обмена на квартиру в г. Кемерово (р-н Южный). Показ по предварительной договоренности!!!! Звоните заранее!!!