Если цена в объявлении изменится, мы сразу сообщим вам об этом на электронную почту.
Нажимая «Подписаться», вы соглашаетесь с правилами.
продам дом, Солонечная6 000 000 ₽
29 авг
Дата публикации объявления
Обн. 10 мая
Дата обновления объявления
4
Количество просмотров (+ просмотры за сегодня)
74 074 ₽/м²
Чистая продажа
Термин "Чистая продажа" означает, что в квартире никто не прописан или
есть куда выписаться и вывезти вещи. Это лучший вариант для покупателя.
Вероятность срыва сделки минимальна.
Этажей1
Площадь участка6,3 соток
Общая площадь81 м2
Материал домадерево
ЭлектричествоНет
Газоснабжениенет
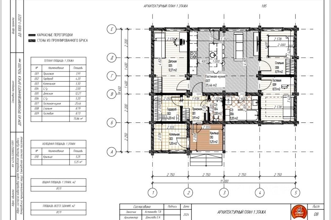
- Внимание Покупателей !!! - продается абсолютно новый дом (2025г.) из профилированного бруса (150 на 200 мм), одноэтажный, на земельном участке (6,26 соток) в собственности, сделано межевание, местонахождение - Елыкаевское сельское поселение, д.
- Внимание Покупателей !!! - продается абсолютно новый дом (2025г.) из профилированного бруса (150 на 200 мм), одноэтажный, на земельном участке (6,26 соток) в собственности, сделано межевание, местонахождение - Елыкаевское сельское поселение, д. Солонечная, - напротив загородного коттеджного поселка Журавлевы Горы, удобное расположение от города, фундамент железобетонные сваи, утепленная кровля металлочерепица, в доме - шесть больших окон, продуманная планировка, 4 (четыре) жилые комнаты, высокие потолки, общая площадь дома (81 м2), прихожая (3,9 м2), гардеробная (4,2 м2), котельная (5,3 м2), просторная кухня гостиная (25,5 м2), спальня (8,8 м2), детская (12,3 м2), гостевая (8,8 м2), ванная комната (5,2 м2), туалет (2,0 м2), уже есть скважина, проведена канализация, септик, подведено электричество, мощность 15 кВт, тихое место, красивая природа в окружении хвойных деревьев, полное сопровождение сделки под ключ без комиссий от Покупателя !!!