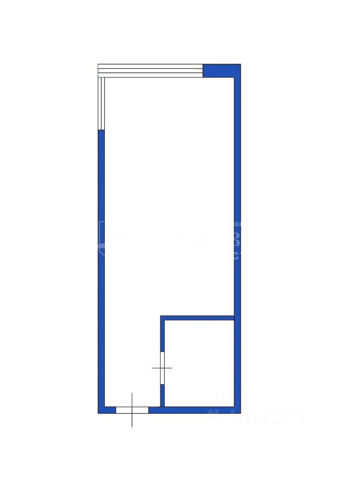
Код объекта: 1762428. Продается уютная квартира-студия в Рудничном районе.
Дом построен в 2021 году и отличается качественной постройкой. Квартира расположена на 1 этаже 7-ми этажного дома. Общая площадь квартиры 28,1 кв. м. Квартира подходит, как для проживания, так и для сдачи в аренду. В квартире выполнен дизайнерский ремонт. В квартире остается кухонный гарнитур, стиральная машина, холодильник, плита, микроволновка, кондиционер. Остальная мебель по договоренности.
В пешей доступности от дома находятся общеобразовательная школа N85 и детский сад ''Соловушка''. Через дорогу находятся салоны красоты и аптеки, Ozon и Wildberries, продуктовые магазины: ''Spar'', ''Ярче'', ''Мария-Ра'' благодаря чему все необходимые покупки можно делать без лишних поездок.
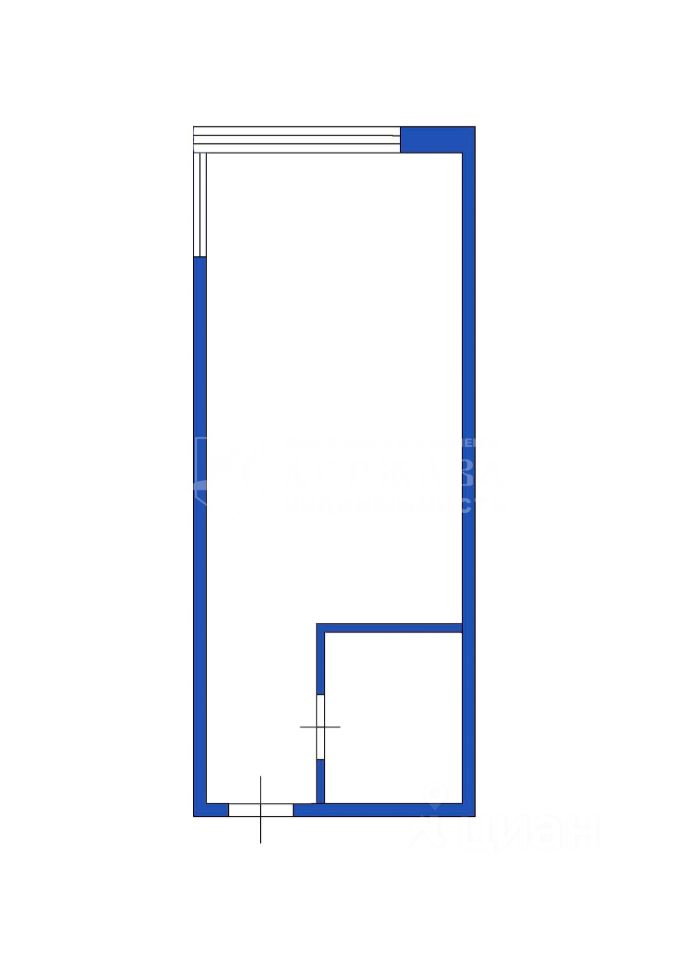
Код объекта: 1762428. Продается уютная квартира-студия в Рудничном районе.
Дом построен в 2021 году и отличается качественной постройкой. Квартира расположена на 1 этаже 7-ми этажного дома. Общая площадь квартиры 28,1 кв. м. Квартира подходит, как для проживания, так и для сдачи в аренду. В квартире выполнен дизайнерский ремонт. В квартире остается кухонный гарнитур, стиральная машина, холодильник, плита, микроволновка, кондиционер. Остальная мебель по договоренности.
В пешей доступности от дома находятся общеобразовательная школа N85 и детский сад ''Соловушка''. Через дорогу находятся салоны красоты и аптеки, Ozon и Wildberries, продуктовые магазины: ''Spar'', ''Ярче'', ''Мария-Ра'' благодаря чему все необходимые покупки можно делать без лишних поездок.
Дворовая территория оборудована парковочными местами, поэтому всегда можно найти место для вашего автомобиля. Камеры видеонаблюдения у подъезда, в лифте и на каждом этаже. Отличная транспортная доступность позволяет быстро добраться до любой точки города.
Юридическая ситуация: один взрослый собственник.
Почему мы: Содействие в оформлении ипотеки на максимально выгодных для Вас условиях, преференции во всех банках, сопровождение сделки на всех этапах и юридическая ответственность (гарантийный сертификат сделки) на 3 года - срок исковой давности.
Приглашаем на просмотр этой замечательной квартиры в удобное для Вас время. Свяжитесь с нами, чтобы договориться о встрече!