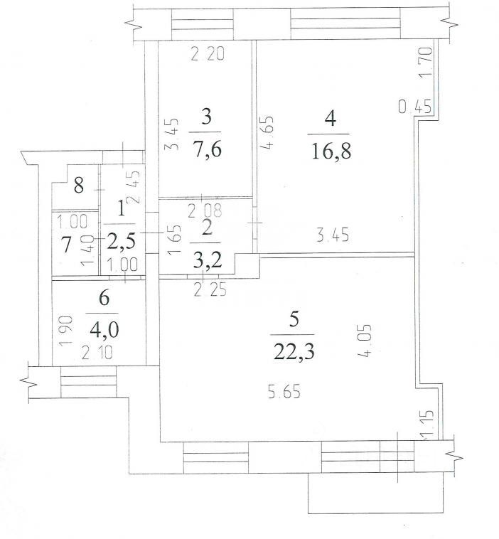
Квартира - сталинка в историческом центре города. Окна выходят на разные стороны (два на дорогу, три во двор). Две квартиры на этаже. Санузел совмещен. Балкон в спальне выход во двор, остекление деревянное. Развитая инфраструктура, все в шаговой доступности. Рядом зона для прогулок, Парк чудес.
Дом является памятником градостроительства и архитектуры. Высокие потолки, просторные комнаты.
Есть парковка во дворе. Один взрослый собственник. Без обременений.
В собственности с 2013 года.










