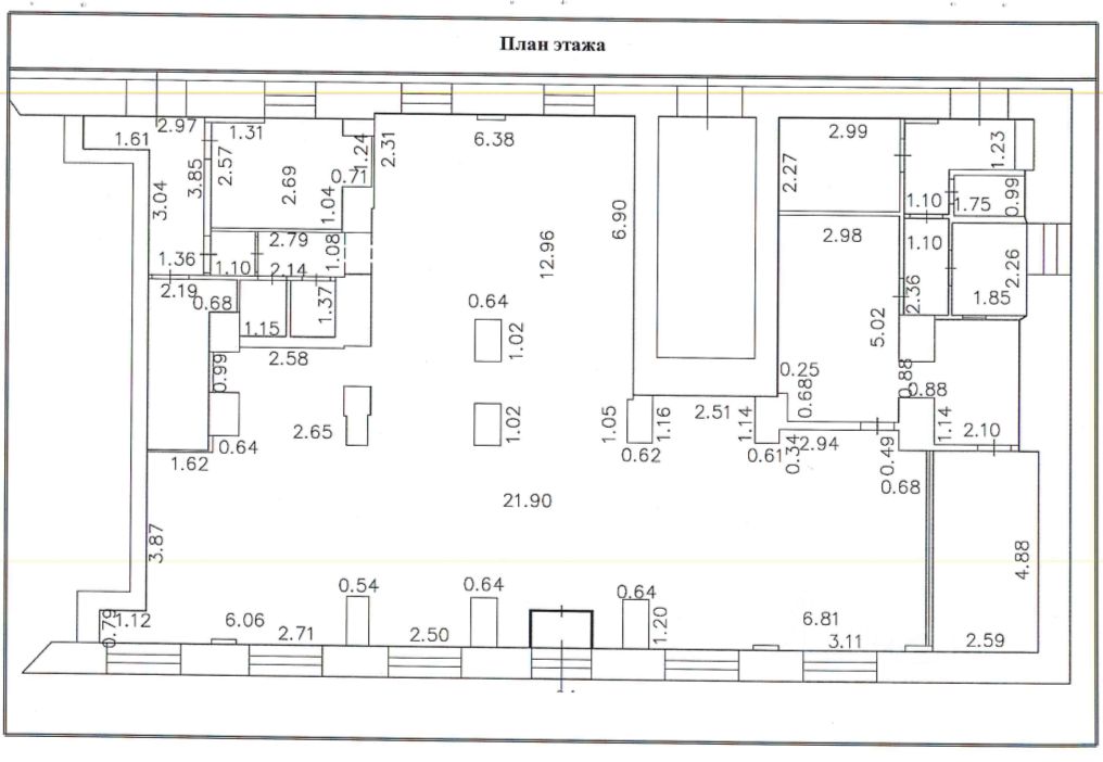
Помещение свободного назначения
Общая площадь помещения 237,4 м2
Мощность эл. сетей = 80 кВт, Высота потолка 3м.
Имеет отдельный центральный вход, витражное остекление.
Объект обеспечен всеми видами коммунальных услуг с возможностью перехода на прямые договора, а также оборудован вентиляцией
Объект расположен на первом этаже многоквартирного дома, 1-ая линия улицы города Кемерово ул. Ноградская, д.34
Преимущества расположения объекта:
• транспортная и пешеходная доступность
• наличие парковочных мест и общественной остановки
• Высоких пешеходный трафик прямо перед витринами помещения
• имеет благоустроенную прилегающую территорию.
• самый центр города, рядом с площадью советов










