Уютный дом для семьи — заезжай и живи!
Кемеровский район, д. Мозжуха, ул. Центральная, 9
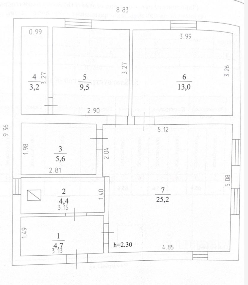
Дом 65,6 м² из сибита с готовым ремонтом — без лишних вложений Участок 18,5 соток — редкое предложение: простор, тишина и свобода
Все необходимое для комфортной жизни:• скважина с водой• электричество• комбинированное отопление (печное + электрическое) — тепло и экономично
Идеально для семьи с детьми:• школа и детский сад — в шаговой доступности• рядом магазины Ярче, Монетка• ПВЗ Wildberries поблизости
Цена: 5 000 000 ? Дом готов к просмотрам — быстрый выход на сделку
Тихая улица, удобное расположение и все для комфортной жизни уже сегодня. Звоните сейчас — такие варианты долго не задерживаются!
Реальному покупателю хороший торг



















