Если цена в объявлении изменится, мы сразу сообщим вам об этом на электронную почту.
Нажимая «Подписаться», вы соглашаетесь с правилами.
продам 2-к, Октябрьский проспект, 67а4 750 000 ₽
21 янв
Дата публикации объявления
Обн. 24 мар
Дата обновления объявления
5
Количество просмотров (+ просмотры за сегодня)
109 954 ₽/м²
Чистая продажа
Термин "Чистая продажа" означает, что в квартире никто не прописан или
есть куда выписаться и вывезти вещи. Это лучший вариант для покупателя.
Вероятность срыва сделки минимальна.
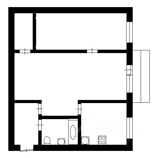
За квартиру внесён аванс. Продается уютная 2-комнатная квартира с дизайнерским ремонтом по адресу Россия, Кемерово, Октябрьский проспект, 67А. Общая площадь составляет 43,2 кв. м, жилая площадь — 32 кв. м, кухня — 6,2 кв. м. Квартира расположена на 3-м этаже 5-этажного панельного дома, построенного в 1973 году. Высота потолков — 2,6 метра. Окна выходят во двор, поэтому в квартире всегда тихо и уютно.
В квартире есть все необходимое для комфортного проживания. Дизайнерский ремонт создает атмосферу уюта и стиля. Планировка позволяет рационально использовать пространство: комнаты светлые и функциональные. Совмещенный санузел оснащен современной сантехникой. Есть балкон, где можно отдохнуть на свежем воздухе.
За квартиру внесён аванс. Продается уютная 2-комнатная квартира с дизайнерским ремонтом по адресу Россия, Кемерово, Октябрьский проспект, 67А. Общая площадь составляет 43,2 кв. м, жилая площадь — 32 кв. м, кухня — 6,2 кв. м. Квартира расположена на 3-м этаже 5-этажного панельного дома, построенного в 1973 году. Высота потолков — 2,6 метра. Окна выходят во двор, поэтому в квартире всегда тихо и уютно.
В квартире есть все необходимое для комфортного проживания. Дизайнерский ремонт создает атмосферу уюта и стиля. Планировка позволяет рационально использовать пространство: комнаты светлые и функциональные. Совмещенный санузел оснащен современной сантехникой. Есть балкон, где можно отдохнуть на свежем воздухе.
Дом в хорошем состоянии, поэтому вы можете быть уверены в его надежности. На территории дома предусмотрена наземная парковка, поэтому всегда найдется место для вашего автомобиля.
Район радует развитой инфраструктурой: рядом находятся школы, детские сады, клиники и магазины. Все необходимое для жизни — в шаговой доступности, поэтому вы сэкономите время на повседневные дела.
Продажа осуществляется по договору купли-продажи. Обременений на квартиру нет, поэтому сделка пройдет быстро и просто. Возможна ипотека.
Приглашаем вас на просмотр, чтобы оценить все преимущества этой квартиры. Записывайтесь, и мы с удовольствием ответим на все ваши вопросы.
Отличное место, рядом есть все: школа, садик, торговые новые центры и сетевые магазины, баня Бодрость, Лента и многое другое. Отличная транспортная развязка. Квартира в нормальном состоянии, ухоженная. Фото свежие. Всё, остаётся, кроме холодильника. Подходит под все виды сделок. Один собственник. Чистая продажа, обмена не нужно. Полная стоимость в договоре. Ждём вас на просмотры.