Если цена в объявлении изменится, мы сразу сообщим вам об этом на электронную почту.
Нажимая «Подписаться», вы соглашаетесь с правилами.
продам 2-к, Пионерская, 23 190 000 ₽
24 янв
Дата публикации объявления
Обн. вчера
Дата обновления объявления
60 762 ₽/м²
Чистая продажа
Термин "Чистая продажа" означает, что в квартире никто не прописан или
есть куда выписаться и вывезти вещи. Это лучший вариант для покупателя.
Вероятность срыва сделки минимальна.
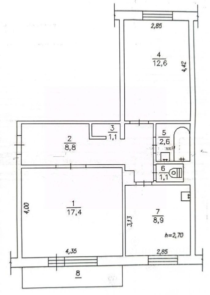
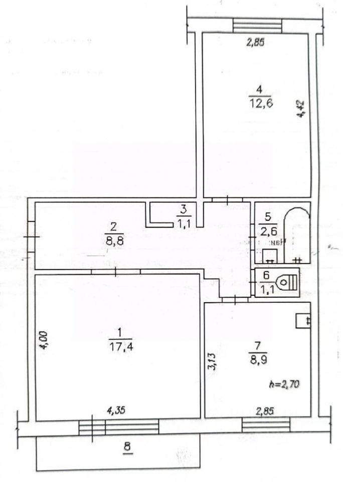
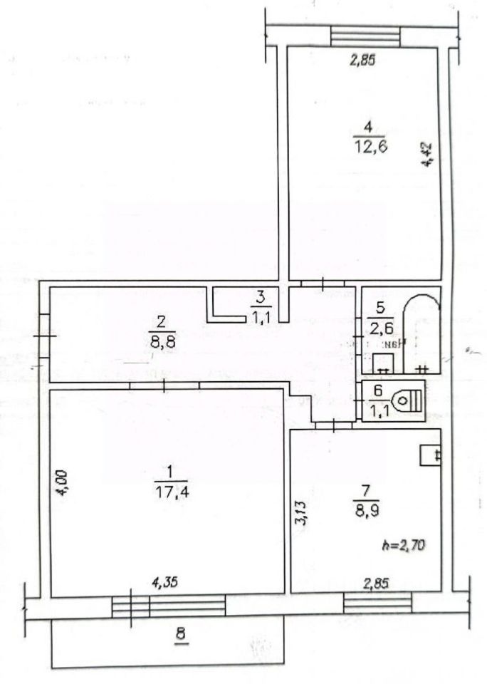
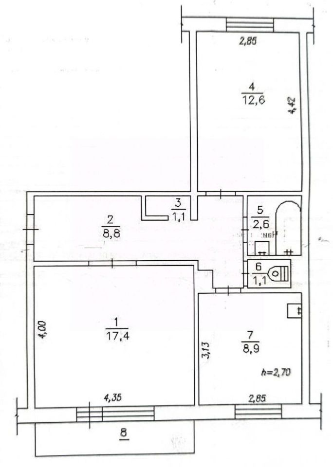
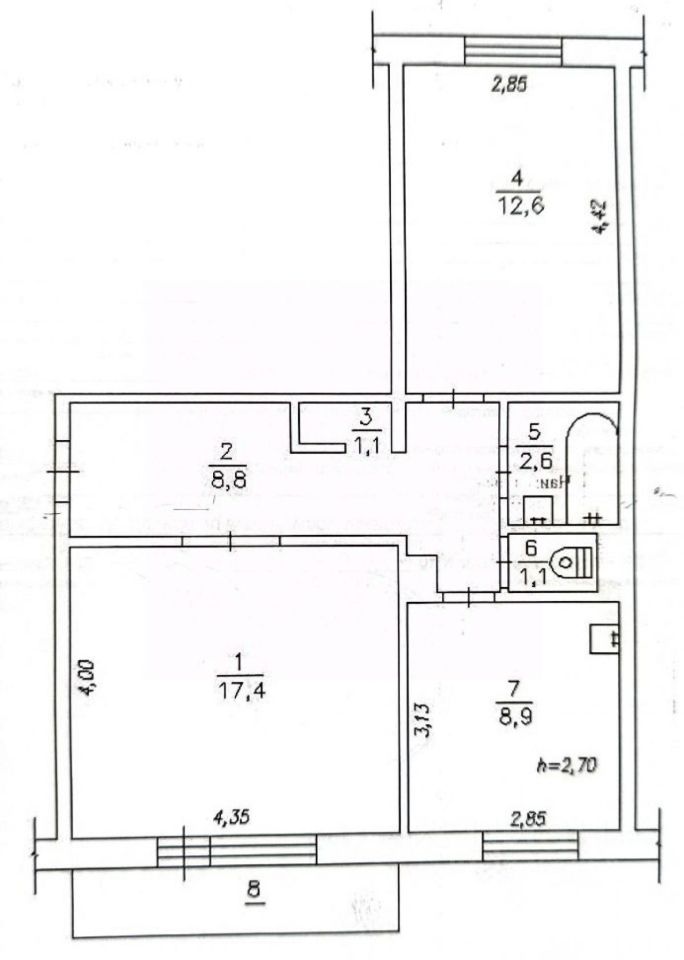
Номер объекта: 541429. Назовите при звонке данный номер объявления - 541429 Продам квартиру улучшенной планировки. Квартира располагается на пятом этаже 5-ти этажного панельного дома построенного в 1987 году. Окна на разные стороны, комнаты квадратного образца (не вагончик) с достойной квадратурой, с/у раздельный, окна ПВХ, балкон (4,6м2) застеклен не раздвижными, а створками на фурнитуре (утепление), большая кухня почти 9кв. метров, удобная входная группа располагающая пространством, высокие потолки 2.7м.
Это идеальный вариант для семей с детьми, так как вблизи дома расположены детский сад 1 Левушка, средняя общеобразовательная школа 28, а также парк детского периода, где ваши дети смогут проводить время на свежем воздухе.
Номер объекта: 541429. Назовите при звонке данный номер объявления - 541429 Продам квартиру улучшенной планировки. Квартира располагается на пятом этаже 5-ти этажного панельного дома построенного в 1987 году. Окна на разные стороны, комнаты квадратного образца (не вагончик) с достойной квадратурой, с/у раздельный, окна ПВХ, балкон (4,6м2) застеклен не раздвижными, а створками на фурнитуре (утепление), большая кухня почти 9кв. метров, удобная входная группа располагающая пространством, высокие потолки 2.7м.
Это идеальный вариант для семей с детьми, так как вблизи дома расположены детский сад 1 Левушка, средняя общеобразовательная школа 28, а также парк детского периода, где ваши дети смогут проводить время на свежем воздухе. Также в непосредственной близости находятся Киселевская детская больница и городская больница, что обеспечит вам быстрый доступ к медицинской помощи в случае необходимости.
Плюсом данного предложения является удобная инфраструктура района. Вы найдете все необходимые магазины и супермаркеты в шаговой доступности: магазины Магнит, Монетка, Пятёрочка, что облегчит вам ежедневные покупки. Также в районе расположен торгово-развлекательный центр Калина, где вы сможете провести время с семьей или друзьями.
Это отличное сочетание цена-качество, которое подходит как для семейного проживания, так и для молодых людей, стремящихся к собственной недвижимости. Ипотека и материнский капитал подходят к данному объекту, что делает его еще более привлекательным для потенциальных покупателей. Один взрослый собственник (не пенсионер), с момента приватизации.
Не упустите возможность стать обладателем прекрасной квартиры, где ценится комфорт, удобство и безопасность для вас и вашей семьи. Планируйте свое будущее уже сегодня - звоните и приходите на просмотр этой уникальной квартиры!