Термин "Чистая продажа" означает, что в квартире никто не прописан или
есть куда выписаться и вывезти вещи. Это лучший вариант для покупателя.
Вероятность срыва сделки минимальна.
Этажей2
Площадь участка1,5 соток
Общая площадь151 м2
Материал домамонолит
ЭлектричествоЕсть
Газоснабжениенет
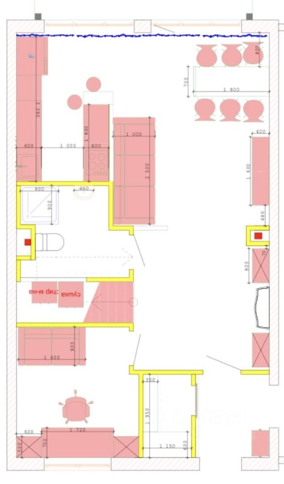
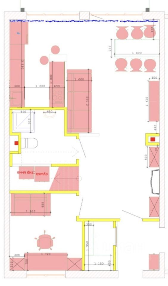
Этот таунхаус предлагает современное и комфортное жилье с продуманной планировкой и премиальными инженерными системами. Расположение на краю линии с видом на тайгу обеспечивает приватность и близость к природе. Планировка Первый этаж включает просторную гостиную-кухню, кабинет, прихожую с гардеробной и санузел с душевой, стиральной и сушильной техникой, с выходом в гараж и на террасу. Второй этаж — мастер-спальня с гардеробной, две детские комнаты и санузел с ванной. Общая жилая площадь 116 кв.м дополнена гаражом 35 кв.м и террасой 18 кв.м на участке 1,5 сотки. Инженерные системы Регулируемые водяные теплые полы с индивидуальной настройкой температуры в комнатах, приточная вентиляция, четыре кондиционера (холод/тепло) плюс один мощный на первом этаже.
Этот таунхаус предлагает современное и комфортное жилье с продуманной планировкой и премиальными инженерными системами. Расположение на краю линии с видом на тайгу обеспечивает приватность и близость к природе. Планировка Первый этаж включает просторную гостиную-кухню, кабинет, прихожую с гардеробной и санузел с душевой, стиральной и сушильной техникой, с выходом в гараж и на террасу. Второй этаж — мастер-спальня с гардеробной, две детские комнаты и санузел с ванной. Общая жилая площадь 116 кв.м дополнена гаражом 35 кв.м и террасой 18 кв.м на участке 1,5 сотки. Инженерные системы Регулируемые водяные теплые полы с индивидуальной настройкой температуры в комнатах, приточная вентиляция, четыре кондиционера (холод/тепло) плюс один мощный на первом этаже. Шумоизоляция смежной стены, умное освещение с точечными светильниками и RGB-подсветкой, сигнализация с тревожной кнопкой и онлайн-камеры на террасе и участке. Гараж и участок Утепленный гараж на 2 машины с вытяжкой, автоматическими воротами, обогревом, водой (горячей/холодной) и полками. Терраса оборудована мебелью, освещением и электричеством, участок ландшафтирован елями, соснами, туями, кустарниками, с калиткой для выхода. Деревья с другой стороны усиливают приватность.