Если цена в объявлении изменится, мы сразу сообщим вам об этом на электронную почту.
Нажимая «Подписаться», вы соглашаетесь с правилами.
продам дом, Тепличная5 300 000 ₽
5 фев
Дата публикации объявления
Обн. вчера
Дата обновления объявления
62 353 ₽/м²
Чистая продажа
Термин "Чистая продажа" означает, что в квартире никто не прописан или
есть куда выписаться и вывезти вещи. Это лучший вариант для покупателя.
Вероятность срыва сделки минимальна.
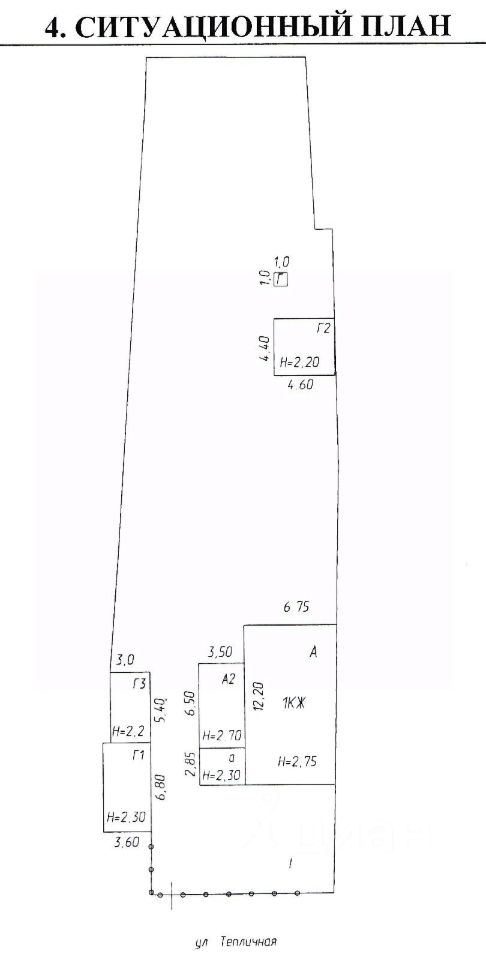
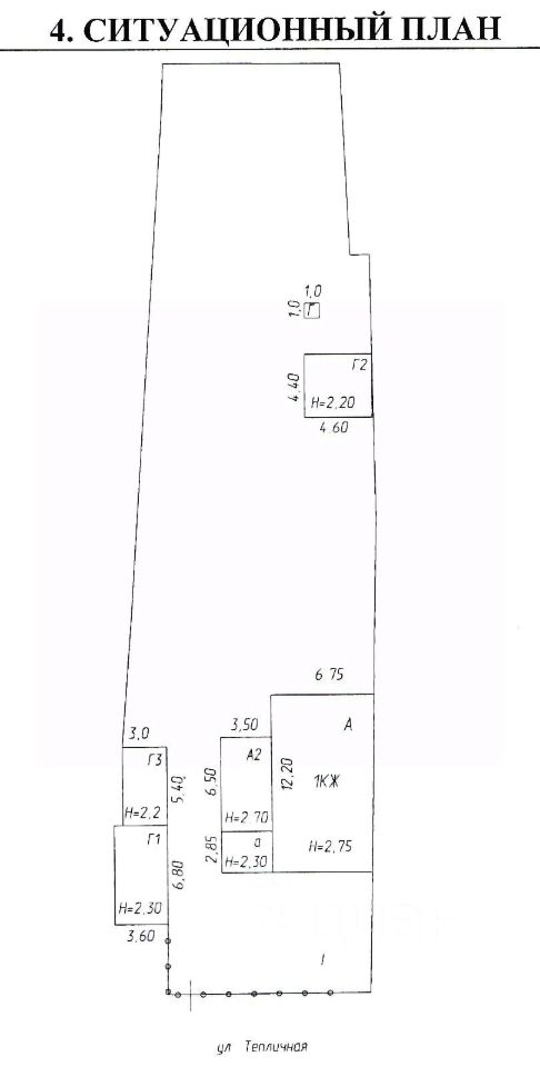
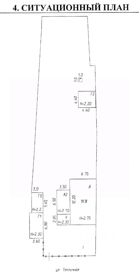
Площадь участка10 соток
Общая площадь85 м2
ЭлектричествоЕсть
Продается уютный дом 90м2 с мебелью и техникой. Здесь будет комфортно жить большой и дружной семье.
На входе-веранда 9м2, далее прихожая 9м2, просторный коридор 11м2, налево санузел 6м2 с водонагревателем 50л, кухня -17 м2, зал 17 м2. Направо спальня 9,4 м2, спальня 13 м2.
Плюсы дома:
Квартира на земле! Центральное отопление, вода и канализация: ванная и туалет в доме. Вода в неограниченном количестве.
Продается уютный дом 90м2 с мебелью и техникой. Здесь будет комфортно жить большой и дружной семье.
На входе-веранда 9м2, далее прихожая 9м2, просторный коридор 11м2, налево санузел 6м2 с водонагревателем 50л, кухня -17 м2, зал 17 м2. Направо спальня 9,4 м2, спальня 13 м2.
Плюсы дома:
Квартира на земле! Центральное отопление, вода и канализация: ванная и туалет в доме. Вода в неограниченном количестве.
Интернет, кабельное телевиденье Конструкция дома: железобетонные плиты (панели), сайдинг, металлическая крыша. 10 соток земли: теплица, баня, капитальный гараж, стайка, железный гараж, погреб, подпол, емкости для полива. Земля торф-все хорошо растет: яблони, жимолость, малина, смородина, вишня, крыжовник, виноград, клубника. Территория дома выложена тротуарной плиткой Хорошие соседи. Месторасположение: дом находится рядом с рекой Кондома, где любят плавать и отдыхать жители Дороги чистят круглый год.