АКТИВ плюс - производственная и складская недвижимость в аренду и на продажу.
Все предложения от собственников, комиссии нет! Готовы предложить помещение под Ваш запрос, звоните!
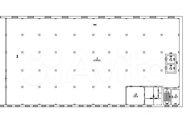
АРЕНДА! Производственно складское помещение площадью от 200 до 5000 кв.м.
- г. Кемерово, Ленинский район.
- Производственное здание, расположенное в пром зоне.
- Собственная территория, парковка и место для маневра большегрузного транспорта.
- 2-ой этаж, два грузовых лифта г.п по 2,5 тн, разгрузочная зона на первом этаже, ворота 2,8 х 2,8 м
- Свободная планировка, шаг колонн 6х6 м.. Высота 6 м.
- Электрическая мощность 300 кВт. центральное водоснабжение и канализация, отопление - газовая котельная, система пожаротушения...
АКТИВ плюс - производственная и складская недвижимость в аренду и на продажу.
Все предложения от собственников, комиссии нет! Готовы предложить помещение под Ваш запрос, звоните!
АРЕНДА! Производственно складское помещение площадью от 200 до 5000 кв.м.
- г. Кемерово, Ленинский район.
- Производственное здание, расположенное в пром зоне.
- Собственная территория, парковка и место для маневра большегрузного транспорта.
- 2-ой этаж, два грузовых лифта г.п по 2,5 тн, разгрузочная зона на первом этаже, ворота 2,8 х 2,8 м
- Свободная планировка, шаг колонн 6х6 м.. Высота 6 м.
- Электрическая мощность 300 кВт. центральное водоснабжение и канализация, отопление - газовая котельная, система пожаротушения...
- Офисные и бытовые помещения (комната персонала, санузел, душевая...)
- полы ровные бетон, окрашены
АКТИВ плюс - коммерческая недвижимость, готовый бизнес, инвестиции
Работаем для Вас с 2017 года!