Дом, Трудовая Показать на карте
Силино
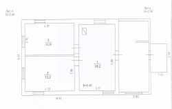
НОВЫЙ ДОМ в селе Силино Кемеровского муниципального округа предлагает выгодную возможность для тех, кто ценит современное и надежное жилье в экологически чистом районе. Общая площадь здания составляет 100 м², оно возведено на основательном ленточном фундаменте с использованием газоблоков, что гарантирует долговечность и эффективную теплоизоляцию. Пространство внутри представляет собой два больших помещения, которые можно функционально разделить на две спальни и совмещенную кухню-гостиную, адаптируя под индивидуальные потребности. На текущем этапе уже выполнены ключевые работы: подсыпка под бетонный пол, установлены пластиковые окна и смонтирована стропильная система крыши с обрешеткой, что позволяет новому владельцу сосредоточиться на внутренней отделке по своему вкусу. Участок площадью 15 соток спланирован и готов к дальнейшему благоустройству. Транспортная доступность обеспечена за счет асфальтированного подъезда. По улице проходит центральное водоснабжение. Столб с электричеством возле участка.Инфраструктура поселка включает школу, библиотеку, фельдшерско-акушерский пункт, магазины и остановки общественного транспорта в шаговой доступности. Для отдыха на природе вблизи расположены лесной массив и река Томь, привлекательные для рыбалки и сбора грибов. Объект принадлежит одному взрослому собственнику, что обеспечивает прозрачность и оперативное проведение сделки. Код пользователя: 124328Номер в базе: 10122738
100 м2
1 этаж
- Показать контакты
- Добавить в избранное
100 м2
1 этаж
2 500 000
25 000 /м2
