1-к квартира Показать на карте
Ленинский район
Кемерово
ДО КОНЦА ФЕВРАЛЯ ДЕЙСТВУЮТ АКЦИИ: СТАВКА 3,5% НА ВЕСЬ СРОК, РАССРОЧКА НА КВАРТИРЫ, ЗИМНЕЕ КОМБО - СКИДКА ДО 15% ПРИ ПОКУПКЕ КВАРТИРЫ ВМЕСТЕ С ПАРКОВКОЙ/КЛАДОВОЙ И ДРУГИЕ ПРЕДЛОЖЕНИЯ!Группа компаний ''Атмосфера'' объявляет о скором старте продаж в новом доме 3 в рамках масштабного проекта комфорт-класса ''Уютный квартал''. Это уникальный шанс забронировать квартиру по выгодным стартовым ценам.О проекте: ЖК ''Уютный квартал'' — первый проект комплексной застройки в формирующемся новом центре города, реализованный в концепции ''город-сад''. Жителей ждут благоустроенные общественные пространства, зоны для прогулок и отдыха, современная инфраструктура для семьи и детей.Особенности новой очереди (Дом 3): Архитектура: 5 секций переменной этажности (от 5 до 15 этажей). Квартиры: от 23,5 до 114,2 м². Отделка на выбор — под самоотделку, ''white box'', ''комфорт'', ''комфорт плюс''. Эксклюзивные планировки: пентхаусы на последних этажах с потолками 3,5 м и застекленными террасами. Двор: закрытый внутренний двор без машин с современными детскими площадками. Комфорт: панорамные окна, премиальная отделка мест общего пользования (МОП). Инфраструктура для жителей: подземный паркинг с лифтом, кладовые помещения.Инфраструктура и благоустройство (для всего ЖК): Для отдыха: 2 фонтана, арт-объекты, подвесные гамаки, качели. Для спорта: всесезонный футбольный манеж, площадки для баскетбола и волейбола, воркаут-зоны, площадка для йоги, 3,5 км велодорожек. Для детей: игровые площадки разных возрастных категорий, зимняя горка, каток. Для прогулок: более 10 км пешеходных дорожек. Ивент-беседка для проведения праздников.Уже работает в первых очередях: Супермаркет, аптека, пиццерия, кофейня, детский центр. Фитнес-рум, комната для детских праздников. Подкаст-рум с функцией семейного кинотеатра, VR-рум Круглосуточная служба безопасности с более чем 1000 видеокамер.Преимущества локации: Детский сад на 300 мест. Современная школа с блоком школы искусств Спа центр Остановка трамвая в шаговой доступности.Способы покупки:• Ипотека от ведущих банков.• Военная ипотека.• Рассрочка.• Trade-in.• Материнский капитал.• Государственные субсидии и сертификаты.Успейте стать частью ''Уютного квартала'' — пространства, где уют, комфорт и современная инфраструктура соединяются для вашей новой счастливой жизни!
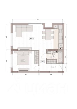
35 м2
4 / 15 этаж
Кирпич - монолит
- Показать контакты
- Добавить в избранное
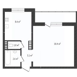
35 м2
4 / 15 этаж
Кирпич - монолит
6 190 000
173 389 /м2
Новостройка,
IV-2028
IV-2028
