2-к, Заречная 2-я, 4 Показать на карте
Центральный район
Кемерово
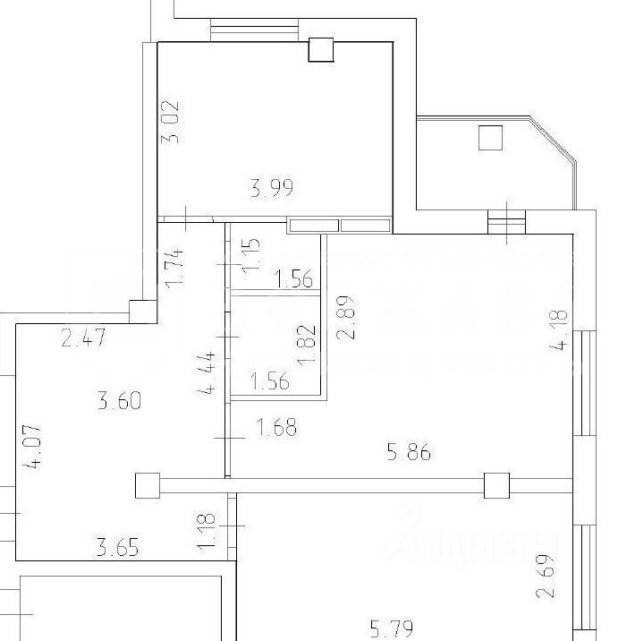
Двухкомнатная квартира площадью 59 м² расположена на первом этаже десятиэтажного панельного дома улучшенной серии 2014 года постройки. Объект предлагается от первого и единственного собственника с современным качественным ремонтом, выполненным для себя с использованием добротных материалов: ламинат, керамическая плитка в санузле, натяжные потолки и светлые обои. Планировка включает изолированные комнаты 12 и 11 м², которые можно обустроить как спальню и детскую или кабинет, а также просторную кухню-гостиную площадью 20.9 м², объединенную с лоджией. Расположение комнат по разным сторонам дома обеспечивает эффективное сквозное проветривание. Лоджия 8 м² служит дополнительным пространством для отдыха или хранения. Высота потолков составляет 2.7 метра, окна пластиковые, вид во двор. В доме поддерживается чистота и порядок, есть наземный и подземный паркинг. Квартира теплая, с высоким цоколем и надежной входной дверью.Локация отличается развитой инфраструктурой: в шаговой доступности находятся детский сад, школа, магазины повседневного спроса, аптеки, медицинский центр, стоматология, тренажерный зал и детская поликлиника. Буквально за домом расположен сквер им. Резникова с фонтаном и игровыми площадками. В непосредственной близости через дорогу — спортивные комплексы ''Кузбасс'' и ''Арена'', бассейн, Московская площадь с набережной, где проходят городские мероприятия. Объект продается без обременений, с возможностью быстрого выхода на сделку. Приятным бонусом для нового владельца станет передача практически всей мебели и бытовой техники, что позволит существенно сэкономить на обустройстве и заехать в квартиру сразу после покупки. Код пользователя: 197137Номер в базе: 10849788
59 м2
1 / 10 этаж
Панель
- Показать контакты
- Добавить в избранное
59 м2
1 / 10 этаж
Панель
8 250 000
139 831 /м2
