2-к, Ленинградский проспект, 55 Показать на карте
Ленинский район
Кемерово
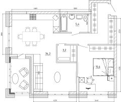
Купля Продажа квартиры, объект недвижимости в городе Кемерово.Новый дом расположен в Ленинском районе города Кемерово по адресу: Ленинградский проспект, 55.• Документы готовы. • Один договор.• Один собственник• Дом входит в ЖК Верхний бульвар, застройщик: ООО Специализированный Застройщик ''Програнд''• Квартира в сданном жилом многоквартирном доме.• Прекрасный район с собственной инфраструктурой. В шаговой доступности различные магазины, аптеки, банки, прогулочные зоны и др. В 10и минутах ходьбы ТЦ Бульвар, спортивный комплекс Кузбасс, корпус КемГУ • Так же рядом с домом детский сад, школа. Легко добраться до районов: Центр, Лесная Поляна, Кировский, ФПК, Южный. При необходимости в шаговой доступности есть автобусные остановки, с которых можно уехать в любой конец города (проспект Ленина, Химиков, Октябрьский, Шахтёров, Молодежный, ул. Кирова и многие другие части города). • Квартира общей площадью 64,3 кв.м., расположена на 4м этаже 14х этажного жилого дома. • Просторная квартира с отличной планировкой, комнаты расположены в разные стороны, что улучшает проветривание. Нужный этаж, на который всегда, по необходимости, можно подняться пешком, без использования лифта.• Квартиру возможно использовать, как полноценную 2х комнатную квартиру, так и как кухню студию и две комнаты.• Помещение под отделку, что позволит вам выполнить дизайн по своему вкусу. • Произведена планировка, проведено электричество, сделана стяжка.• Во дворе дома закрытая внутренняя площадка с различными игровыми зонами, местами для отдыха, беседки и многое другое. • Документы готовы.
64 м2
4 / 14 этаж
Кирпич
- Показать контакты
- Добавить в избранное
64 м2
4 / 14 этаж
Кирпич
7 600 000
118 196 /м2
Новостройка,
дом сдан
дом сдан
