4-к, Космическая, 37 Показать на карте
Заводский район, Южный
Кемерово
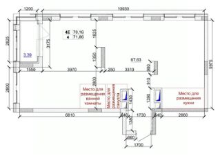
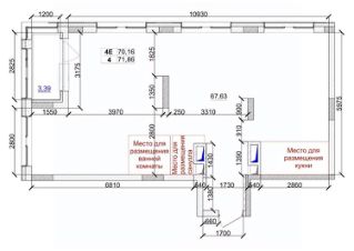
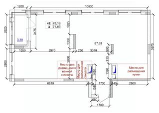
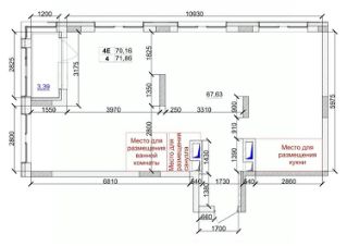
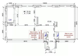
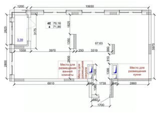
Мечтаете об уютном гнёздышке города? Встречайте! Уютная 4-комнатная квартира в Заводском районе г. Кемерово, Космическая 37. Эта квартира - гармония тепла и комфорта! В квартире удобная планировка, просторные комнаты выходят на разные стороны дома, что удобно для солнца и проветривания. Большая застекленная лоджия, где прекрасно растет зелень. В квартире сделан косметический ремонт: - Проведена новая медная коммуникация воды, - Санузел раздельный: облицован кафелем, - Потолок выровнен ветонитом, частично требует внимания,- На деревянном полу уложен линолеум, полы теплые, очень приятно ходить,- На стенах современные обои,- Окна - стеклопакеты, очень герметичные и прекрасно удерживают тепло. Уникальные преимущества - Средний этаж, приличные тихие соседи,- Кирпичный дом - это отличная тепло- и шумоизоляция (100%-гарантия спокойствия и приватности)- Во дворе много парковочных мест и детские площадки. Во дворе большой школьный стадион и школа90, рядом остановки, банки, магазины в шаговой доступности. Из добрых рук в добрые руки : квартира наполнена хорошей энергетикой! Продается в связи с переездом. Локация - просто мечта! Всё, что нужно для комфортной жизни, находится буквально под рукой:- Отличная транспортная доступность во все районы- Рядом остановка общественного транспорта до достопримечательностей центра города - 10 минут на транспорте. Юридическая прозрачность и надёжность - Квартира без обременений, в собственности более 15 лет,- Три взрослых собственника, Подарите себе идеальное сочетание комфорта и надёжности! Звоните! С радостью покажу вам квартиру!
80 м2
4 / 9 этаж
Кирпич
- Показать контакты
- Добавить в избранное
80 м2
4 / 9 этаж
Кирпич
9 000 000
112 500 /м2
