2-к, Притомский проспект, 7/5 Показать на карте
Центральный район
Кемерово
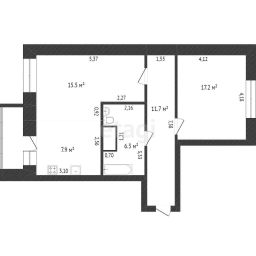
Продается уютная 2-х комнатная квартира в ЖК Кемерово-Сити, который расположен в самом сердце города, в центральном районе. Это теплый монолитно-кирпичный 25-этажный дом комфорт-класса, построенный в 2012 году. Квартира имеет изолированную планировку и высокие потолки, а окна выходят в разные стороны двора.Ремонт выполнен в светлых пастельных тонах, а планировка квартиры включает:- Гостиную с двумя окнами и просторным входом.- Полноценную изолированную кухню с окном.- Спальню с выходом на застекленный балкон, на котором оборудована вместительная изолированная кладовая.- Большой совмещенный санузел с инсталляцией и просторной душевой, выложенной плиткой.- Теплые полы в коридоре и ванной комнате.Квартира оборудована всем необходимым для комфортного проживания, и все остается в продаже. На этаже имеется колясочная, а в доме проведена качественная шумоизоляция и установлены камеры видеонаблюдения. Также дежурит консьерж, а для удобства жильцов предусмотрено 4 лифта. Местоположение этого дома действительно впечатляет и предлагает множество преимуществ для комфортного проживания. С таким обилием услуг и инфраструктуры, как скверы, образовательные учреждения, магазины и спортивные объекты, жизнь здесь может стать очень удобной и насыщенной. Наличие культурных объектов, таких как театр и музей, Ледовый дворец, кузбасс арена, Московская площадь с выходом на реку Томь, а также новая набережная добавляют привлекательности этому району. Удобная транспортная развязка и близость к ключевым точкам города делают это место еще более удобным для жителей.Все эти преимущества, которые делают жилой комплекс уникальным и привлекательным. Земля с богатой культурной жизнью и отличной инфраструктурой это важный фактор при выборе места жительства.Комплексная услуга для покупателя с полной финансовой ответственностью агентстваПри звонке, пожалуйста, сообщите номер варианта - JV002042128480
60 м2
8 / 25 этаж
Панель
- Показать контакты
- Добавить в избранное
60 м2
8 / 25 этаж
Панель
10 100 000
168 333 /м2
