2-к, Космическая, 2б Показать на карте
Заводский район
Кемерово
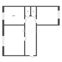
Продается 2 комнатная квартира, планировка позволит Вам организовать пространство по своему вкусу и предпочтениям. Квартира расположена на 9 этаже 9-этажного дома, что обеспечивает прекрасный вид из окон и отсутствие шума от соседей сверху. Квартира идеально подойдет как для постоянного проживания, так и для сдачи в аренду. Отличное месторасположение и удобная планировка делают этот объект привлекательным для различных категорий покупателей. В квартире имеется две комнаты, что позволит разместиться семье с детьми или создать уютную обстановку для пары. Отличительной особенностью данного объекта является удобная планировка, которая позволяет максимально эффективно использовать каждый квадратный метр. Рядом с домом расположены все необходимые объекты инфраструктуры: магазины, супермаркеты, аптеки, банки, кафе и рестораны. В шаговой доступности находятся детские сады, школы и поликлиника. Также в нескольких минутах ходьбы находится остановка общественного транспорта, что обеспечивает удобную транспортную доступность к любой точке города.Комплексная услуга для покупателя с полной финансовой ответственностью агентстваПри звонке, пожалуйста, сообщите номер варианта - JV002042123828
51 м2
9 / 9 этаж
Кирпич
- Показать контакты
- Добавить в избранное
51 м2
9 / 9 этаж
Кирпич
6 936 000
135 469 /м2
Новостройка,
дом сдан
дом сдан
