2-к, Ленина проспект, 25 Показать на карте
Прокопьевск
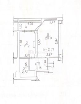
Продается уютная двухкомнатная квартира в самом сердце Прокопьевска, на проспекте Ленина, 25. Общая площадь квартиры составляет 41.6 кв. м, расположена она на 4 этаже 5-этажного панельного дома 1966 года постройки. Высота потолков — 2.5 метра, что придает пространству дополнительный объем. В квартире выполнен косметический ремонт, что позволяет новому владельцу легко обустроить жилье по своему вкусу. Компактная кухня площадью 6 кв. м удобна для приготовления пищи и семейных обедов. В квартире есть совмещенный санузел и балкон, окна выходят во двор, поэтому в помещении всегда тихо и спокойно. Дом находится в хорошем состоянии, поэтому можно не беспокоиться о его надежности. Для автовладельцев предусмотрена наземная парковка. Благоприятная инфраструктура — рядом находятся школы, детские сады, клиники и магазины, поэтому все необходимые учреждения находятся в шаговой доступности.Квартира подходит для приобретения в ипотеку. Все документы готовы к сделке, собственники без обременений, поэтому процесс покупки пройдет максимально быстро и комфортно для вас.Приглашаем вас на просмотр этой замечательной квартиры. Звоните и записывайтесь на удобное время, чтобы увидеть все своими глазами и почувствовать атмосферу этого уютного места.
41 м2
4 / 5 этаж
Панель
- Показать контакты
- Добавить в избранное
41 м2
4 / 5 этаж
Панель
2 890 000
69 471 /м2
