1-к, Халтурина, 35а Показать на карте
Кировский район, 21-й микрорайон
Кемерово
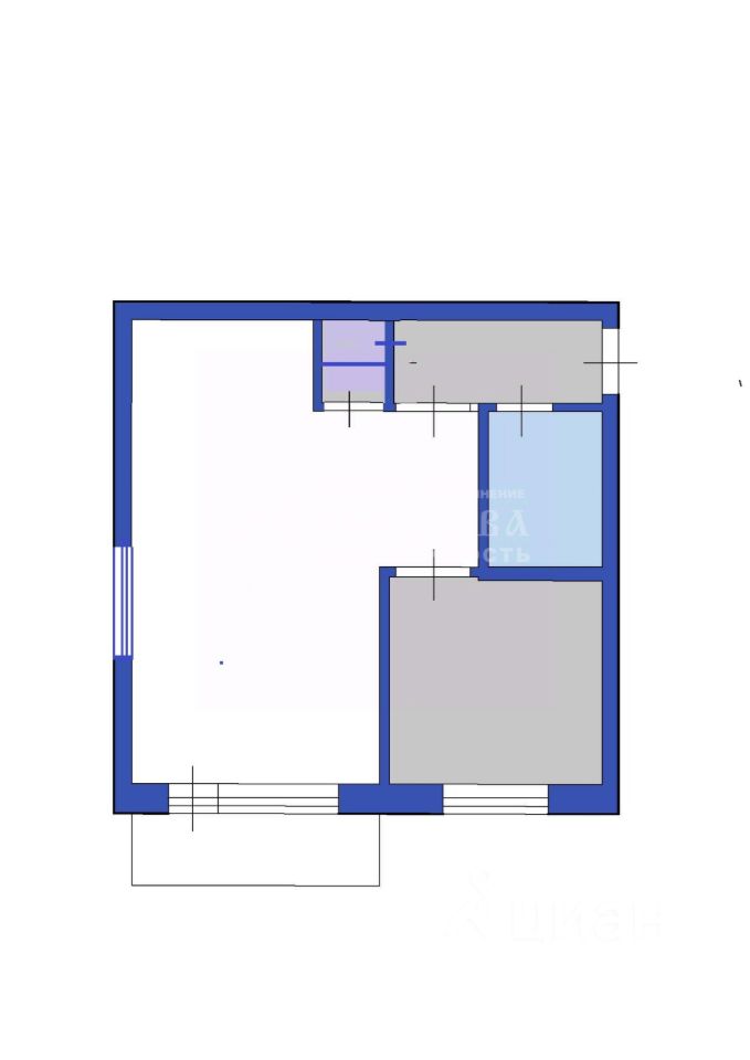
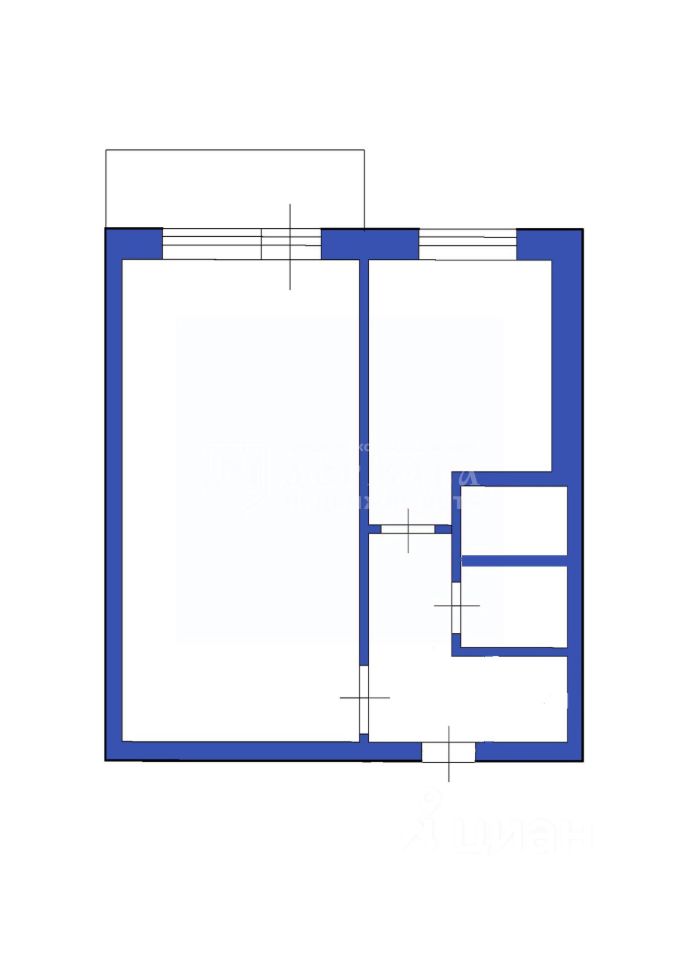
Код объекта: 1310378.Ищете жильё для себя или свой молодой семье? Этот вариант квартиры достоин вашего внимания , в хорошем спальном районе города и по доступной цене! Кирпичный дом 1984года постройки с железобетонными перекрытиями обеспечивает надёжность и теплую атмосферу в квартире на все времена, а отсутствие соседей с верху придает комфортное и спокойное пребывание в квартире в вечернее время, после работы или учебы. Наличие парк- мест во дворе и открытий парковочной площадке в в Для ваших ребятишек имеются современные спортивно- игровые площадке, что позволит мамам наслаждаться в проведением совместного времени с детьми недоделк от дома и в шаговое доступности от магазинов, где удобным образом при возвращении домой можно купить недостающие продукты для ужина). Детские сады, которые находятся во дворе дома, в разы помогает молодым родителям решать утренние вопросы по организации и оптимизации времени перед работай, остановка транспорта в 3 мин от дома , конечная остановка автобусов позволяет вам комфортно располагаться в креслах как в утренние часы, так и вечерние. Для школьников большая в шагово доступности общеобразовательная школа # 15. Для пап которые имеют автомобиль в 300 метрах от дома имеется большой гаражный комплекс и местами для хранения овощей и заготовок, надо ли сказать, что это не маловажный плюс при выборе этой квартиры. В квартире имеется ремонт, всегда можно обновить под свои предпочтения. Квартира имеет теплые и спокойные оттенки интерьера, что позволяет вписать любую мебель в своем интерьере. Натяжные потолки по периметру квартиры позволяет экономит на дорогостоящем ремонте потолков, поменянные межкомнатные двери позволят организовать отдельные пространства жилой комнаты. Входная группа организована и имеется прекрасное место для большого и вместительного шкафа купе, двойная входная дверь обеспечит вам шумо- и тепло-изоляцию , организованное пространства кухонной зоны (кухонный гарнитур , печь остается) позволить оптимально использовать постоянство кухни. Зал можно разделить на три разные зоны: зону отдыха, зону кабинета( игровая или зона для занятий) и зону отдыха ( она же зона сна) , обратите внимание на фотографии зала, Балконная часть организована для хранения разных важных вещей от непогоды, что не маловажно в осенне-зимний период. Квартира идеально подойдёт как для личного проживания, так и как инвестиционный проект, для сохранения денежной массы( аренда прекрасный способ сохранить свои деньги и получить пассивный доход за весь период сдачи+ окупаемость коммунальных платежей ежемесячная. Компания поможет вам вопрос на каждом из вариантов покупки. Эта квартира — отличное решение для тех, кто ищет уютное жильё в спокойном районе. Мы гарантируем безопасную сделку и юридическую поддержку нашим клиентам.Один собственник, обременений нет, во владении более 5 лет, долгов на объекте не имеются. Не упустите свой шанс стать обладателем этой квартиры уже сейчас! Звоните согласовать просмотр!
32 м2
5 / 5 этаж
Кирпич
- Показать контакты
- Добавить в избранное
32 м2
5 / 5 этаж
Кирпич
2 650 000
82 813 /м2
