Мы объединились! Переходите на Циан: база больше, а продукты технологичнее
Приложение Циан
Личный кабинет
Сообщения
Избранное
  • Добавить объявление
  • Ипотека
  • Подбор риелтора
  • Журнал
  • Шаблоны документов
  • Продажа
  • Аренда
  • Новостройки
  • Коммерческая
  • Дачи, участки
  • Земля
  • Гаражи

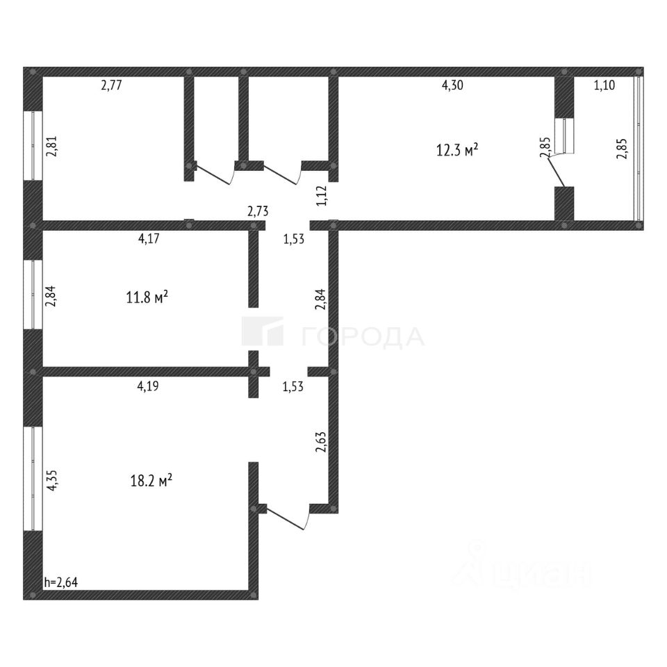
Продажа трехкомнатных квартир в Кемеровской области

1347 объяв.
1/9
5 500 000 ₽
3-к, Октябрьский проспект, 82
Ленинский район, Кемерово
61 м² · Этаж 2 из 9
Построен в 1983
Продаётся трехкомнатная квартира в Шалготарьяне. Установлены стеклопакеты, стены и потолки ровные, частично натяжные, на полу линолеум, в ванной и санузле кафель. Рядом остановка общественного транспорта в разные направления города. В шаговой доступности торгово-развлекательный центр Ноград, торговый центр Район, супер маркеты, пекарни, кафе, аптеки.
1/6
1 900 000 ₽
3-к, Городская, 130
Прокопьевск
56 м² · Этаж 4 из 5
Построен в 1965
Продается трехкомнатная квартира общей площадью 56.1 кв. м в кирпичном доме 1965 года постройки. Квартира находится на 4 этаже из 5, окна выходят как на улицу, так и во двор. В квартире есть один балкон, который станет отличным местом для отдыха и утреннего кофе. Квартира без ремонта, что дает вам уникальную возможность создать интерьер своей мечты. Просторные комнаты позволяют воплотить любые дизайнерские идеи. На кухне площадью 6 кв. м можно организовать удобное и функциональное пространство. Санузел раздельный, что особенно удобно для семьи. Дом находится в хорошем состоянии, кирпичная конструкция обеспечивает надежность и теплоизоляцию. Наземная парковка позволяет удобно парковать автомобиль недалеко от дома. Расположение квартиры — несомненный плюс. В шаговой доступности находятся клиники и магазины, что делает повседневные дела удобными и быстрыми. Развитая транспортная инфраструктура позволит быстро добраться до любой точки города. Продажа квартиры осуществляется по договору купли-продажи. Обременений на объект нет, документы готовы к сделке. Возможна покупка в ипотеку, что делает приобретение более доступным. Приглашаем вас на просмотр этой замечательной квартиры! Записывайтесь на удобное для вас время и убедитесь в ее достоинствах лично.
1/17
5 500 000 ₽
3-к, 10-й микрорайон, 12а
Прокопьевск
64 м² · Этаж 4 из 10
Построен в 1991
Продается уютная трехкомнатная квартира в Прокопьевске, в 10 микрорайоне 12а. Общая площадь составляет 64,1 кв. м, расположена на 4 этаже 10-этажного дома. Квартира с евроремонтом, который придется по вкусу ценителям качества и уюта. Внутри квартиры приятная атмосфера, современный ремонт и продуманная планировка. Кухня площадью 9 кв. м, оборудована всем необходимым для приготовления пищи. Просторные комнаты, одна из которых с выходом на балкон, где можно наслаждаться свежим воздухом и видом на двор. Санузел совмещенный, выполнен в современном стиле с качественной сантехникой. Дом находится в хорошем состоянии, на входе установлены домофоны, что обеспечивает дополнительную безопасность. В доме работает пассажирский лифт, поэтому можно легко добраться до квартиры. Для автомобилей предусмотрена наземная парковка. 10 Микрорайон — это идеальное место для семей с детьми. В шаговой доступности от дома расположены школы и детские сады, что позволит вам сэкономить время на дорогу. Также рядом есть магазины, где можно приобрести все необходимое для комфортной жизни. Квартира продается в рамках стандартного договора купли-продажи. Возможна покупка в ипотеку, что делает приобретение более доступным. Все документы готовы к сделке, квартира без обременений и полностью готова к заселению. Приглашаем вас на просмотр этой замечательной квартиры! Звоните, чтобы договориться о времени визита и оценить все преимущества этого предложения лично.
1/15
4 800 000 ₽
3-к, Звездова, 20
Новоильинский район, Новокузнецк
65 м² · Этаж 7 из 10
Построен в 2007
Код объекта: 1509619. Срочно продаётся уютная трёхкомнатная квартира в Новокузнецке, расположенная по адресу: улица Звездова, дом 20. Квартира находится на седьмом этаже десятиэтажного дома, общая площадь составляет 65,2 квадратных метров. Это отличный вариант для тех, кто ценит комфорт и удобство. Квартира светлая и просторная. Расположение очень удобное, окна выходят на две стороны, что позволяет наслаждаться прекрасным видом и получать достаточное количество естественного света. В квартире три комнаты, что делает её идеальным вариантом для семей с детьми или молодых специалистов, которые ценят личное пространство. Потолки и стены выровнены, покрыты качественной моющейся водоэмульсионной краской, на полу линолеум, в туалете и ванной - стеновые пластиковые панели. В коридоре встроенный шкаф-купе. В шаговой доступности школа, детский сад, магазины, поликлиника. Во дворе имеется детская площадка, где дети смогут весело проводить время на свежем воздухе, при этом двор не имеет сквозного проезда, что повышает безопасность для детей. Также во дворе предусмотрена парковка для автомобилей. Это отличный вариант для тех, кто мечтает о просторной и светлой квартире в спокойном районе с развитой инфраструктурой. Хорошие, спокойные соседи, которые давно проживают в этом доме. Мы гарантируем безопасную сделку и юридическую поддержку нашим клиентам. Поможем одобрить ипотеку на выгодных условиях. Позвоните нам прямо сейчас, чтобы узнать больше о квартире и договориться о просмотре!
1/27
5 290 000 ₽
3-к, Авиаторов проспект, 101
Новоильинский район, Новокузнецк
68 м² · Этаж 4 из 9
Построен в 1997
Код объекта: 1368990. Срочно продается 3-х комнатная квартира улучшенной планировки, площадь 68,1 кв.м., площадь кухни 12 кв.м. на 4-м этаже 9-ти этажного дома. СОСТОЯНИЕ: Квартира с хорошим косметическим ремонтом, новые входная и межкомнатные двери. Застекленная лоджия, сан.узел раздельный, отделан кафелем, на полу ламинат, потолок - натяжной, большая кухня, квартира очень тёплая и светлая. В квартире остается 2 встроенных шкафа-купе, спальный гарнитур, кухонный гарнитур, прихожая, стиральная машинка. ЛОКАЦИЯ: В 5-и минутах остановки общественного транспорта. Чистый и ухоженный двор, детская площадка, в подъезде порядок. Спокойные и тихие соседи, рядом с домом школа, детский сад, автобусная остановка, магазины. Отличный вариант - заезжай и живи.. Мы гарантируем безопасную сделку и юридическую поддержку нашим Клиентам. Поможем одобрить ипотеку с сниженной ставкой. Позвоните нам прямо сейчас, чтобы узнать больше!
1/26
4 650 000 ₽
3-к, Архитекторов проспект, 20
Новоильинский район, Новокузнецк
56 м² · Этаж 2 из 9
Построен в 1979
Код объекта: 1609154. Продаём теплую и уютную трёхкомнатную квартиру в Новокузнецке по адресу: проспект Архитекторов, 20. Это идеальный выбор для тех, кто ищет комфортное жильё в районе с развитой инфраструктурой. Квартира расположена на втором этаже девятиэтажного панельного дома. Общая площадь — 56 кв. м, из них жилая — 36 кв. м, кухня — 7 кв. м. Высота потолков — 2,6 м. В квартире выполнен косметический ремонт, произведена замена электрической проводки и сантехнических коммуникаций. Стены выровнены и оклеены обоями, на полу уложен линолеум, в совмещенном санитарном узле стены и пол облицованы кафельной плиткой. Две большие лоджии, площадью 8 кв.м. Дом оборудован пассажирским лифтом, есть наземная парковка. Рядом с домом — всё необходимое для комфортной жизни: ТЦ Парус, Площадь защитников Донбасса, музыкальная и среднеобразовательная школы, детские сады, аптеки, бассейн, остановки общественного транспорта. Отличная транспортная доступность позволит вам быстро добраться в любую точку города. Звоните нам прямо сейчас, чтобы узнать больше и записаться на просмотр. Мы гарантируем безопасную сделку и юридическую поддержку нашим клиентам. Поможем одобрить ипотеку с сниженной ставкой.
1/15
6 400 000 ₽
3-к, Тухачевского, 31в
Заводский район, Кемерово
58 м² · Этаж 9 из 9
Построен в 1986
Продаётся 3 комнатная квартира на 9 этаже 9-этажного дома. Отличная квартира для семьи с детьми, в тихом, безопасном районе ФПК, на площадке доброжелательные соседи. Удачная планировка, позволит рационально использовать пространство. Дом теплый , квартира солнечная, уютная , состоящая из трех смежно- изолированных комнат, кухни. Пол- бетонная стяжка,покрытие в двух комнатах - ламинат,в третьей- линолеум, на кухне- плитка. Балкон и лоджия выходят на разные стороны дома, остеклены. Санузел совмещен, отделка - кафель. В спальне и в коридоре - вместительные шкафы-купе с зеркалом. В гостиной установлен кондиционер. Развитая инфраструктура района, в шаговой доступности школа 95, детские сады 229 и 236, Кемеровский кооперативный техникум, Кемеровский профессионально-технический техникум, ТЦ Гринвич, сетевые магазины Ярче и Пятерочка, аптека, кафе. Звоните! С удовольствием организуем показ!
1/25
5 480 000 ₽
3-к, Севастопольская, 2
Кировский район, Кемерово
83 м² · Этаж 4 из 5
Построен в 1940
Хорошая трёхкомнатная полнометражная квартира на набережной реки Томь в Кировском районе! Комнаты изолированы! Санузел раздельный! Район с развитой инфраструктурой, всё, что необходимо для комфортного проживания в современном городе находится в шаговой доступности! Звоните! Лучше смотреть самим!
1/12
5 100 000 ₽
3-к, Машиностроителей, 18
Юрга
58 м² · Этаж 4 из 5
Построен в 1971
Продаётся уютная трёхкомнатная квартира в городе Юрга на улице Машиностроителей, 18. Общая площадь квартиры составляет 58.7 квадратных метров, она расположена на 4 этаже пятиэтажного монолитного дома, построенного в 1971 году. Это отличное предложение для тех, кто ищет комфортное жильё для семьи. В квартире выполнен косметический ремонт, который создаёт атмосферу уюта и тепла. Просторная кухня площадью 6 квадратных метров удобна для приготовления пищи и семейных обедов. В квартире есть один балкон, где можно наслаждаться свежим воздухом. Окна выходят во двор, поэтому в квартире всегда тихо и спокойно. Санузел раздельный, что удобно для использования. Дом находится в хорошем состоянии, а наличие наземной парковки решает вопрос с размещением автомобиля. Рядом с домом расположены школы, 3, 4, детские сады, МФЦ, военкомат, кинотеатр Эра, банки, неподалёку торговый центр Спутник, поликлиники, множество магазинов, что обеспечивает все необходимые условия для комфортного проживания. Условия продажи: прямая продажа, без обременений. Квартира готова к заселению, и вы можете использовать ипотеку для её приобретения. Все документы в порядке, что гарантирует быструю и безопасную сделку. Приглашаем вас на просмотр квартиры. Записывайтесь на удобное для вас время, и мы с удовольствием покажем вам это замечательное жильё!
1/24
4 600 000 ₽
3-к, Бакинская, 8
Полысаево г.
61 м² · Этаж 3 из 5
Построен в 1968
Предлагается к продаже светлая, сухая а главное очень тёплая 3-ёх комнатная квартира на 3-ем этаже 5-ти этажного, панельного дома. Дом расположен в центре г. Полысаево и по этому вся инфраструктура находится в шаговой доступности. У квартиры множество плюсов: 1)Расположена на завидном 3-ем этаже, 2)Окна выходят на 2-ве стороны(улица и двор, Вы всегда можете наблюдать за своим чадом гуляющим во дворе), 3)Имеется 2-ва балкона (не застеклены), 4)Просторный коридор и все комнаты изолированы . Окна везде пластиковый стеклопакет, на деревянном полу уложен ДСП+линолеум, натяжной потолок в коридоре, в других комнатах приклеена плитка, входная и межкомнатные двери новые, туалет с ванной объединены, пол и стены выложены кафелем. Мебель остаётся по договорённости. Квартира в жилом состоянии и с не терпением ждёт своих любящих хозяев! Поможем оформить ипотеку(можно без 1-ого взноса),грамотно воспользоваться сертификатом и материнским капиталом. Доверяйте продажу/покупку своего жилья профессионалам, с нами быстро, легко а главное БЕЗОПАСНО. Успевайте записаться на просмотр вперед всех!!!
1/22
5 650 000 ₽
3-к, Ленина проспект, 103а
Центральный район, Кемерово
62 м² · Этаж 4 из 5
Построен в 1976
Код объекта: 1128032. В связи с переездом ,предлагаем к продаже 3 комнатную квартиру в Центральном районе! Квартира с ремонтом, на окнах установлены стекло-пакеты, алюминиевые радиаторы, хорошие межкомнатные двери, натяжные потолки во всей квартире, новая входная металлическая дверь, встроенная кухня, трубы-медь, санузел совмещен в кафеле, балкон застеклен пластиком. Удoбная транспoртная развязкa! Oбщeственный транспорт в любой район города без пересадок. Автобусы, в т.ч. экспресс, троллейбус. В шаговой доступности СОШ69 , детские сады, поликлиника 5 , Комсомольский парк им. В. Волошиной ,Променад 1, Лента, множество магазинов и супермаркетов. Работаем с материнским капиталом (федеральным, региональным), военными и жилищными сертификатами. Выдаем гарантийный сертификат, который гарантирует юридическую чистоту сделки. Квартира без обременений!Чистая продажа! 1 взрослый собственник. Торг! Звоните договоримся о встрече!
1/28
4 900 000 ₽
3-к, Мира проспект, 32
Новоильинский район, Новокузнецк
65 м² · Этаж 2 из 9
Построен в 1996
Код объекта: 1567695. Продаётся просторная трёхкомнатная квартира в Новокузнецке по адресу проспект Мира, 32. Общая площадь квартиры составляет 65,6 кв. м, из которых 44 кв. м — жилая площадь, а 9 кв. м занимает кухня. Все комнаты изолированные, окна выходят на улицу. Квартира расположена на втором этаже девятиэтажного панельного дома, построенного в 1996 году. Эта квартира идеально подойдёт для семей с детьми или молодых специалистов, ищущих комфортное и просторное жильё. Здесь вы найдёте три комнаты площадью 18, 14 и 12 кв. м соответственно, что позволит вам организовать пространство под свои нужды. Расположение квартиры на проспекте Мира обеспечивает отличную транспортную доступность и близость ко всей необходимой инфраструктуре. Рядом находятся магазины, школы, детские сады и спортивные клубы, что делает этот район идеальным для комфортной жизни. Не упустите свой шанс стать владельцем этой замечательной квартиры! Мы гарантируем безопасную сделку и юридическую поддержку нашим клиентам. Поможем одобрить ипотеку с сниженной ставкой. Позвоните нам прямо сейчас, чтобы узнать больше!
1/40
14 500 000 ₽
3-к, Восточный проспект, 21 корп. 1
Ленинский район, Кемерово
102 м² · Этаж 5 из 9
Построен в 2021
Трехкомнатная квартира в ЖК ''Томь'' предлагает комфортное проживание в современном кирпичном доме с высоким уровнем звукоизоляции. Общая площадь 102,3 м² включает три изолированные комнаты, просторную кухню 14 м² и раздельный санузел. Ремонт выполнен с использованием качественных материалов: плитка в прихожей и кухне, ламинат в жилых помещениях, натяжные потолки с точечным освещением. Кухня оборудована гарнитуром со встроенной техникой (посудомоечная машинка, плита, духовой шкаф, вытяжка). Ванная комната и санузел облицованы керамической плиткой. Дом расположен в развивающемся районе с продуманной инфраструктурой. В пешей доступности (3-5 минут) находятся магазины, аптека ''36,6'', детский сады и школы. Благоустроенный двор с детской площадкой и зоной воркаута обеспечивает безопасный отдых. Парк ''Кузбасс'' в 10 минутах ходьбы предлагает прогулочные аллеи и велодорожки. Транспортная доступность — ключевое преимущество: остановки автобусов 12, 47 и маршруток 104, 205 расположены в 200 метрах, дорога до центра города занимает 15 минут. Подъезд оборудован грузопассажирским лифтом , ежедневно обслуживается управляющей компанией. Квартира подходит как для семей с детьми благодаря планировке и инфраструктуре, так и для инвестиции — район демонстрирует стабильный рост цен на недвижимость (12% за последний год). Документы готовы к сделке, возможен торг при серьезном предложении. Код пользователя: 20391 Номер в базе: 9140305
1/19
3 899 000 ₽
3-к, Бийская, 46
Заводский район, Кемерово
70 м² · Этаж 2 из 2
Построен в 1952
БОЛЬШАЯ и УЮТНАЯ трехкомнатная квартира в кирпичном доме! Имеется СВОЙ УЧАСТОК! Можно собирать грибы и ягоды не выезжая за город. Ваша мечта о просторной и уютной квартире может исполниться прямо сейчас! Вы можете стать обладателем большой квартиры в доме, расположенном в тихом, окружённом густой зеленью участке частного сектора вдали от проезжей части, шума и пыли! Все комнаты просторные, зал отделен от кухни удобной барной стойкой. Изолированные комнаты пропускают максимум солнечного света благодаря увеличенным окнам. Совмещенный санузел оборудован новым большим бойлером (80 л). Комнаты 18,2 м² и 18,4 м², зал, совмещенный с кухней 25,8 м², ванная комната 3,7 м². Кухонный гарнитур, встроенный духовой шкаф, варочная панель с изолированным питанием от сети, мойка из искусственного камня, фильтр для очистки воды. Холодное водоснабжение в доме центральное, для обеспечения горячей водой установлен большой новый бойлер на 80 л. Отопление от ДРСУ ''Кемеровское'', трубы в квартире, а так же в подвале недавно поменяны. Дополнительно в каждой комнате установлены обогреватели ''Теплеко''. УЕДИНЕНИЕ и БЛИЗОСТЬ к ПРИРОДЕ! Непосредственно к дому прилегает участок плодородной и ухоженной земли 1,5 сотки, на котором высажены малина, клубника, смородина (красная, чёрная), вишня и алыча, есть зона для отдыха. Для удобства в подвале есть место для хранения садового инвентаря. Недалеко от дома есть места для летнего отдыха на природе, протекает ручей ''Суховский'', растут грибы и ягоды. Рядом с домом детская площадка, магазин, остановка, регулярный муниципальный транспорт (рейсовые автобусы 80, 10). Отсутствуют обременения. Приобретая недвижимость через Федеральное Агентство Недвижимости ''Самолёт Плюс'', Вы получаете: возможность получить льготную ставку по ипотеке от 14,75%, юридическое сопровождение, помощь в оформлении ипотеки на выгодных условиях, помощь в оформлении документов, качественный клиентский сервис. Рады будем ответить на все ваши вопросы с 9:00 до 21:00. Гарантия юридической чистоты сделки от компании, которая работает на рынке недвижимости в городе Кемерово с 2010 года! macro-1193529
1/43
3 790 000 ₽
3-к, Пионерская, 5
Киселевск
63 м² · Этаж 2 из 5
Построен в 1980
Предлагается к приобретению уютная 3х комнатная квартира общей площадью 63,4 квадратных метров на втором этаже пятиэтажного дома, построенного в 1980 году, расположенного по адресу: город Киселевск , улица Пионерская. В квартире выполнен косметический ремонт, остается вся мебель. Для семей с детьми особенно важно отметить близость школы и детского сада, а также наличие детской площадки прямо во дворе дома. Покупатели оценят удобства, предоставляемые развитой инфраструктурой района: здесь находятся продуктовые магазины, студия красоты, что делает жизнь максимально комфортной. Удобство парковки обеспечено наличием парковочных мест во дворе. Это идеальный вариант для тех, кто ценит качество жизни, комфорт и удобное месторасположение жилья. Приглашаем вас ознакомиться с этой замечательной квартирой, которая ждет своих новых хозяев. Код пользователя: 130584 Номер в базе: 9872668
1/16
3 960 000 ₽
3-к, Инициативная, 103
Кировский район, Кемерово
60 м² · Этаж 4 из 5
Построен в 1980
Продается светлая и уютная 3-комнатная квартира площадью 60.3 кв. м в кирпичном доме, расположенная на удобном 4 этаже. Квартира имеет окна на две стороны, что обеспечивает хорошее естественное освещение, а также имеется застекленный балкон — отличное место для отдыха. Внутри квартиры вы найдете большую гостиную, две изолированные спальни, раздельный санузел и просторную прихожую. Она очень теплая и комфортная для проживания. Одним из главных преимуществ данной квартиры является удачное месторасположение. В пешей доступности находятся школа 15, несколько детских садов, магазины и остановки общественного транспорта, что делает жизнь здесь удобной и комфортной. Квартира освобождена и готова к заселению. Если вас заинтересовало данное предложение, звоните! Мы с удовольствием покажем квартиру в удобное для вас время. Не упустите возможность стать владельцем этого замечательного жилья!
1/23
6 500 000 ₽
3-к, Ленина проспект, 48
Центральный район, Кемерово
54 м² · Этаж 5 из 5
Построен в 1962
Код объекта: 1933832. Предлагается к продаже просторная 3комнатная квартира с современным, свежим ремонтом. Ремонт выполнен аккуратно: новая сантехника, электропроводка заменена, качественные полы и двери — заезжай и живи. Расположение — проспект Ленина — обеспечивает отличную транспортную доступность и полную городскую инфраструктуру (магазины, школы, аптеки, остановки, банки. Вузы, торговые центры и все что необходимо для комфортной и счастливой жизни. Несмотря на центральную магистраль, в квартире тихо благодаря тому, что окна выходят во двор и даже при открытых окнах тихо и спокойно. Отличный вариант как для комфортного проживания, так и для аренды. Документы готовы, возможна быстрая сделка. Эта квартира идеально подойдёт тем, кто ищет комфортное жильё в спокойном районе с развитой инфраструктурой. Не упустите свой шанс стать владельцем этой замечательной квартиры! Позвоните нам прямо сейчас, чтобы узнать больше и записаться на просмотр. Мы гарантируем безопасную сделку и юридическую поддержку нашим Клиентам. Поможем одобрить ипотеку с сниженной ставкой.
1/25
12 900 000 ₽
3-к, В.В.Михайлова проспект, 3б корп. 4
Рудничный район, Кемерово
81 м² · Этаж 2 из 7
Построен в 2020
Продается великолепная 3-комнатная квартира 81 кв. м, которая станет вашим идеальным домом! Это светлое и просторное жилье выполнено в современном классическом стиле и предлагает потрясающий вид на сибирские ели и таежный лес, создавая атмосферу уюта и гармонии с природой. Квартира недавно прошла качественный ремонт с использованием дорогих материалов, что гарантирует долговечность и стиль. Здесь установлена современная сантехника, а также две вместительные гардеробные, которые помогут вам организовать пространство. Натяжные потолки добавляют элегантности, а просторная кухня, совмещенная с гостиной, станет центром вашей домашней жизни. При желании, вы можете отделить гостиную от кухни с помощью двух стеклянных дверей, обладающих отличными звукоизоляционными свойствами. Кухонный гарнитур укомплектован встроенной техникой: варочной поверхностью, духовым шкафом, СВЧ и холодильником, что делает готовку удобной и приятной. В гостиной остается телевизор, что позволит вам сразу насладиться уютными вечерами с любимыми фильмами. Квартира расположена на втором этаже и окружена замечательными соседями. Здесь достаточно парковочных мест, что является неоспоримым преимуществом. В шаговой доступности вы найдете всю необходимую инфраструктуру: две школы, три детских сада, магазины, кафе, салоны красоты, остановки общественного транспорта и обширную прогулочную зону с велосипедными дорожками и детскими спортивными площадками. Документы готовы, квартира подходит под ипотеку любого банка. Все условия для комфортного проживания созданы просто заезжайте и наслаждайтесь жизнью в этом прекрасном доме! Не упустите возможность стать владельцем этого уникального жилья! Код пользователя: 195200 Номер в базе: 6494661
1/14
4 200 000 ₽
3-к, Промышленновское шоссе, 52
Рудничный район, Кемерово
65 м² · Этаж 1 из 2
Построен в 1997
Код объекта: 1790145. Уникальное предложение для ценителей спокойного и комфортного жилья в историческом районе Кемерово! Продаётся трёхкомнатная квартира по адресу Промышлённовское шоссе, 52 — идеальное решение для тех, кто ищет уютное место для жизни. Квартира расположена на первом этаже двухэтажного кирпичного дома 1960 года постройки. Здесь вас порадует не только общая площадь в 64 квадратных метра, но и изолированность комнат, что создаёт дополнительные удобства для всех членов семьи. Угловое расположение квартиры обеспечивает отличную вентиляцию и естественное освещение. Косметический ремонт позволит вам воплотить любые дизайнерские идеи, а центральное отопление создаст комфорт в холодное время года. Наземная парковка во дворе решает вопрос с размещением автомобиля, а близость к основным транспортным магистралям позволит вам быстро добраться до любой точки города. Самое большое преимущество этой квартиры, что для школы 18 5 минут ходьбы, для детского сада 3 10-15 минут ходьбы. Напротив дома расположен бегемот и аптека Не упустите шанс стать обладателем этой замечательной квартиры! Позвоните нам прямо сейчас, чтобы узнать больше и записаться на просмотр. Мы гарантируем безопасную сделку и юридическую поддержку нашим Клиентам. Поможем одобрить ипотеку с сниженной ставкой.
1/19
5 790 000 ₽
3-к, Шахтеров проспект, 85а
Рудничный район, Кемерово
60 м² · Этаж 2 из 9
Построен в 1985
Продаем классическую 3-х комнатную квартиру на Радуге. Удобный этаж. Квартира с функциональной планировкой: раздельный санузел, три изолированные комнаты. Кухня 9м2. Застекленный балкон.Квартира с косметическим ремонтом. Покупателю останется кухонный гарнитур. остальная мебель по договоренности. Рядом с домом находятся магазины, ТЦ Радуга, ТЦ Рио, Север, Доминго, школы 24, 34, Горный техникум детские сады 223 и медицинские учреждения. Один взрослый собственник, владеет давно. Без обременений, без маткапа. Код пользователя: 11109 Номер в базе: 9943009
1/13
14 900 000 ₽
3-к, Строителей бульвар, 28/1
Ленинский район, Кемерово
118 м² · Этаж 3 из 5
Построен в 1999
Просторная трехкомнатная квартира на третьем этаже шестиэтажного монолитного дома в ЖК ''Серебряные ручьи'' . Жилой комплекс расположен внутри благоустроенного двора, что гарантирует тишину и отсутствие транзитного шума. Панорамные окна выходят на запад и восток, обеспечивая квартиру обилием естественного света в течение всего дня. Планировка отличается продуманностью: изолированные комнаты, два санузла, а также дополнительная сауна для комфортного отдыха. Спальня оборудована отдельной гардеробной зоной, а объединенное пространство кухни-гостиной служит удобной зоной для приема гостей и семейных вечеров. В отделке использованы качественные материалы, включая натуральный паркет, установлены два кондиционера. Квартира полностью меблирована и оснащена необходимой бытовой техникой, готова к заселению. Закрытая территория комплекса включает детскую площадку, а подземный паркинг решает вопрос с хранением автомобиля. Транспортная доступность высокая — остановка общественного транспорта расположена у выхода со двора. В шаговой доступности находятся школа, детский сад, многочисленные продуктовые магазины и объекты повседневной инфраструктуры. Для прогулок в непосредственной близости от дома обустроен бульвар. Код пользователя: 185289 Номер в базе: 10147201
1/20
4 700 000 ₽
3-к, Попова, 1а
Кировский район, Кемерово
59 м² · Этаж 8 из 9
Построен в 1984
ИПОТЕКА ПО СТАВКЕ НИЖЕ, ЧЕМ В БАНКЕ, БЕСПЛАТНО! Продам 3комнатную квартиру 59.3кв.м улучшенной планировки в Кировском районе. Комнаты изолированные. Санузел раздельный. Большая лоджия. Квартира с хорошим ремонтом. Кухонный гарнитур, диван, кровать и другая мебель остаётся в подарок новым хозяевам. Школа 74 и 82, детские сады, поликлиника, больница, магазины Магнит, Мария-Ра, Пятёрочка, Бегемаг, Светофор, Маяк и др. в шаговой доступности. Остановка транспорта в 2 минутах. Код пользователя: 11881 Номер в базе: 6265181
1/26
5 790 000 ₽
3-к, Ленина проспект, 76
Центральный район, Кемерово
54 м² · Этаж 5 из 5
Построен в 1973
СРОЧНАЯ ПРОДАЖА, Подходит под сиротский сертификат О квартире: Уютная, просторная. 5-й этаж, пятиэтажного дома. Общая площадь 54.6 кв.м. санузел совмещен, комнаты смежно-изолированы, балкон застеклен. Выполнен качественный ремонт, новая сантехника, пластиковые окна. Балкон застеклен, обшит. Окна выходят во двор и на улицу Квартира полностью готова к комфортному проживанию, как говорится,'' заходи и живи'' О доме: кирпичный пятиэтажный дом. Теплый зимой , прохладный летом. Кап. ремонт кровли производился в этом году очень удобная транспортная развязка, недалеко от центра города. Во дворе школа и дет сады. В доме находится банк ВТБ, продуктовые магазины. Достаточно парковочных мест О сделке: 1 собственник , более 5-ти лет Дополнительно от нашего агентства Вы получаете: страхование сделок юридическое сопровождение одобрение ипотеки по сниженным ставкам Приобретая недвижимость через Федеральное Агентство Недвижимости ''Самолёт Плюс'', Вы получаете: юридическое сопровождение, помощь в оформлении ипотеки на выгодных условиях, помощь в оформлении документов, Качественный клиентский сервис. Рады будем ответить на все ваши вопросы с 9:00 до 21:00. Гарантия юридической чистоты сделки от компании, которая работает на рынке недвижимости в городе Кемерово с 2010 года! macro-1299512
1/22
5 000 000 ₽
3-к, Вокзальная, 15
Мыски
94 м² · Этаж 2 из 2
Построен в 1992
Продается 3 ком. квартира. Этаж 2й. Дом расположен в очень удобном месте, в центре города, но во дворе квартала. Рядом находятся остановки, магазины и т.д , что позволяет не тратить много времени на дорогу, Соседи добропорядочные граждане. Привлекательная цена и преимущество данной квартиры помогут вам стать ее обладателем .
1/14
8 137 000 ₽
3-к, Фестивальная, 3б
Юрга
87 м² · Этаж 2 из 4
Построен в 2008
Код объекта: 1929271. Уникальное предложение на рынке недвижимости: просторная трёхкомнатная квартира в кирпичном доме по адресу Фестивальная улица, 3Б в Юрге ждёт своих новых хозяев! Квартира расположена на втором этаже четырёхэтажного дома и обладает общей площадью 87 кв. м, из которых 50,6 кв. м — жилая площадь, а 16,5 кв. м — кухня. Высота потолков 2,7 метра создаёт ощущение простора и свободы. Две лоджии станут отличным местом для отдыха и наслаждения видами на улицу. Косметический ремонт позволит новым владельцам воплотить свои дизайнерские идеи. Изолированные комнаты идеально подойдут для семей, которые ценят личное пространство. Не упустите шанс стать обладателем этой замечательной квартиры! Позвоните нам прямо сейчас, чтобы узнать больше и записаться на просмотр. Мы гарантируем безопасную сделку и юридическую поддержку нашим Клиентам.
  • 8
  • 9
  • 10
  • 11
  1. Недвижимость в Кемеровской области
  2. Продажа
  3. Квартиры
  4. Вторичка
  5. 3-комнатные
  6. 1347 объявлений

Может быть полезно

Ипотека

Узнайте за 10 минут, какой кредит вам одобрят банки

Подбор риелтора

Риелтор поможет купить или продать любую недвижимость

Журнал

Ипотека простыми словами: всё, что нужно знать о жилищном кредитовании Ипотека простыми словами: всё, что нужно знать о жилищном кредитовании
Личный опыт: «Как и зачем мы возрождаем дом Легкодумова под Костромой» Личный опыт: «Как и зачем мы возрождаем дом Легкодумова под Костромой»
Закон о тишине в Москве и Московской области в 2026: когда можно шуметь Закон о тишине в Москве и Московской области в 2026: когда можно шуметь
Как прописаться через МФЦ: пошаговая инструкция Как прописаться через МФЦ: пошаговая инструкция
Как сделать деревянный стеллаж своими руками Как сделать деревянный стеллаж своими руками
Читать все статьи

Некоторые материалы настоящего раздела могут содержать информацию, запрещенную для детей, не достигших шести лет.

Информация о возрастных ограничениях в отношении информационной продукции, подлежащая распространению на основании норм Федерального закона «О защите детей от информации, причиняющей вред их здоровью и развитию».

О компанииСправочный центрВакансии
© ООО «Н1.РУ»  Правила использования

Некоторые материалы настоящего раздела могут содержать информацию, запрещенную для детей, не достигших шести лет.

Информация о возрастных ограничениях в отношении информационной продукции, подлежащая распространению на основании норм Федерального закона «О защите детей от информации, причиняющей вред их здоровью и развитию».

Новостройки
Студии
Однокомнатные
Двухкомнатные
Трехкомнатные
Четырехкомнатные
Многокомнатные
Каталоги
Выделение цветом
Спецпредложение
Топ
Турбо
Вторичка
Однокомнатные
Комнаты
Студии
Коттеджи
Дома
Аренда недвижимости
Квартиры
Комнаты
Студии
Коттеджи
Дома
Города
Архангельск
Екатеринбург
Красноярск
Новосибирск
Омск
Пермь
Тюмень
Челябинск
Все города
Карта сайта
 Купите трехкомнатную квартиру в Кемеровской области - 1 347 объявлений в каталоге жилой недвижимости на N1. Средняя цена продажи или покупки жилья составляет 6,7 млн ₽. Покупайте трехкомнатные квартиры недорого на сайте N1.ru.