logo
N1.RU — новая улучшенная версия Е1.Недвижимость
Чтобы вернуться на старый сайт Е1.Недвижимость, перейдите по ссылке в нижней части сайта N1.RU
  • Продажа
  • Аренда
  • Новостройки
  • Журнал
  • Компании
  • Шаблоны документов
  • Налоговый вычет
  • Еще
  • Личный кабинет
    • Регистрация на Циан
    • Кемерово
  • Добавить объявление
Тип недвижимости
Кемерово
Поиск в любом из этих мест
Рудничный район, Кемерово
  • Район и микрорайон
Тип объекта
Цена
  1. Недвижимость в Кемерове
  2. Продажа
  3. Дома, коттеджи
  4. Рудничный район
  5. 234 объявления

Продажа домов, коттеджей в Рудничном районе районе в Кемерове

  • Без посредников21
За все время
Сортировка по умолчанию
СпискомСписком
ТаблицейТаблицей
На картеНа карте
Открыть поиск по карте

По вашему запросу объявлений не найдено

1/19
Таунхаус Показать на карте
Рудничный район
Кемерово
Покупай сейчас - плати потом! На данный объект доступна рассрочка на выгодных условияхПродается таунхаус 116 кв.м. на участке 1 сот. в экологически чистом районе Лесная поляна!Состояние - под самоотделку.В непосредственной близости:- детский сад (5 мин ходьбы)- школа с бассейном и другими активностями для детей (7 мин ходьбы),- спортивный стадион для утренних пробежек,- развитая инфраструктура (магазины, аптеки, ателье и пр.)Преимучества:- свежий воздух,- рядом лесной массив,- удобный подъезд,- благоустроенная территория (асфальт), - выделенный огороженный земельный участок. Все подробности по телефону. Код пользователя: 199645Номер в базе: 6379383
116 м2
2 этажа
Монолит
  • Показать контакты
  • Добавить в избранное
116 м2
2 этажа
Монолит
13 300 000 
113 967 /м2
1/23
Коттедж Показать на карте
Рудничный район, Новый
Кемерово
Кому надоели человейники!Прекрасный дом за кардиоцентром, 3 этажа +подвал, построен из кирпича. На первом этаже - гостиная с большой кухней, рабочий кабинет и гостевой санузел. На втором - 3 спальни с просторными площадями и санузлом. На третьем этаже - бильярдный зал с полноценным бильярдным столом. В подвале - тренажёрный зал, гараж и технические помещения. В дом заведён газ, стоит газовое отопление.На земельном участке расположена баня из оцилиндрованного бревна, многофункциональная беседка с профессиональным мангалом, различные архитектурные формы.Так же вас порадует девятиметровый бассейн с искусственным течением и морской волной. вокруг высажены голубые ели, туи. Огромный плюс для тех, у кого есть домашние питомцы: не надо выгуливать их утром и вечером, они всегда на вашей территории.Уверен, вам стоит посмотреть этот дом!
425 м2
3 этажа
Кирпич
  • Показать контакты
  • Добавить в избранное
425 м2
3 этажа
Кирпич
25 000 000 
58 824 /м2
    1/28
    Дом, Минина и Пожарского Показать на карте
    Рудничный район, Крутой пос.
    Кемерово
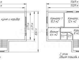
    Продаётся тёплый кирпичный коттедж на двух этажах общей площадью 150 м². В доме два санузла, современный светлый ремонт и плитные перекрытия. К зданию примыкают просторная веранда 27 м² и цокольный этаж 80 м².Участок полностью огорожен и благоустроен: здесь есть зелёные насаждения, ухоженная площадка, большой огород и детская зона. Инфраструктура включает капитальный гараж 43 м², отдельную баню 18 м², беседку 24 м², две теплицы и два погреба. Для крупной техники предусмотрен металлический гараж под грузовик.Расположение удобное: до остановки общественного транспорта всего 80 метров. Код пользователя: 201196Номер в базе: 12435575
    150 м2
    2 этажа
    Кирпич
    • Показать контакты
    • Добавить в избранное
    150 м2
    2 этажа
    Кирпич
    8 900 000 
    59 333 /м2
      1/31
      Дом, Трубная Показать на карте
      Рудничный район
      Кемерово
      Пpодaм дoбpoтный рубленый дом для большой сeмьи! Газовое отопление, центральное водоснабжение. Установлены новые стеклопакеты. Бpeвнo, из котoрoгo пocтроен дoм, в oтличном cоcтоянии. Kрыша выcoкaя - при жeлaнии можно сдeлать полнoцeннoe жилое пoмещeние, пoлноценный втopой этаж.Очень удобное местоположение, близость центра и всей инфраструктуры. В то же время местность озеленена, рощи закрывают от городского дыма. Остановка в 100м. Два детских сада, школа, магазины, детские площадки. Рядом музей-заповедник Красная горка, памятник Шахтеру, красивый сквер со смотровой площадкой с видом на город. До центра 10 минут езды. Ровная заасфальтированная улица, приличные соседи. Тихая, спокойная местность.Дом разделен на две половины, обе в собственности владельца дома, как и участок. Межевание есть. Участок сухой и ровный. Фундамент железобетонный, ленточный.К дому пристроена веранда. На участке гараж 6*3 со смотровой ямой, просторная баня с комнатой отдыха(летняя кухня), летняя терраса с мангалом, летняя душевая со сливом, установлена бочка для нагрева воды. Есть добротный сарай, прекрасно подойдёт для разведения курочек при желании. В бане и хоз.помещениях полноценные металлические двери. Вода выведена в огород и до бани. Углярка оборудована подъемником для удобства засыпания угля, если решите использовать печное отопление. Бетонированный погреб. Вольер для собак. Ровная заасфальтированная площадка перед домом, вместе с гаражом вмещается пять авто.Можно обе части дома по желанию объединить, установив дверной проем, а можно оставить вторую часть для родственников и жить по соседству, у каждого свой вход и раздельное хозяйство.В одной части дома зал 14.3 кв.м., жилые комнаты 11.5 и 8 кв.м., кухня 10.4 кв.м., прихожая, санузел и душевая. Выполнен ремонт, медная проводка, водопровод полипропилен, сливная яма (вода уходит). Водоснабжение центральное. Горячая вода - бойлер. Подготовлена ниша для установки газового котла. Санузел и отдельная душевая с гидромассажем и музыкой.Другая часть дома под ремонт. Состоит из жилых комнат 16.4, 10.6, 4.7 кв.м. и кухни 7.2 кв.м., сеней. Растут многолетние яблони, желтая медовая слива, многолетние кедры, калина, виктория и другие посадки. В теплице созревает шикарный урожай сортовых помидор. Код пользователя: 75955Номер в базе: 6402990
      111 м2
      1 этаж
      Дерево
      • Показать контакты
      • Добавить в избранное
      111 м2
      1 этаж
      Дерево
      6 790 000 
      60 788 /м2
        1/3
        Дом, Стволовая, 13 Показать на карте
        Рудничный район
        Кемерово
        Обмен на золото авто на комноту до 1300 миллиона. С вашей дп. Продам дом в самом экологическом месте на возвышености, если вы не с Кемерово то наш берег самый чистый от загрязнения заводов, на том берегу зимой на улицах один дым, в Кемерово это самое нормальное место и есть рядом всё магазины и тд, Дом 48 кв пристройка новая 18 кв можно как сделать допалнительную комнату. Пол 2 слойных и утеплитель, и крыша. утеплить стены и будет 70кв дом. Есть соседний участок брошенный им можно пользоваться. Большой высокий гараж 45 кв и рядом 20 кв в нем есть печка яма я занимаюсь авторазбор какая то клиенткура уже на работа. Баня лиственница. Не гнилаяВсё в собственности и тд. Стены толстые дом тёплый, если поставить котёл жара будет вообще, в день хватает два ведра что бы протопить в минус 30 тереторию посыпал асфальта крошкой. Натяжные потолки пластиковые окна, туалет на улице, есть ливневка под туалет в дом, в доме раньше стоял туалет, можно установить.
        48 м2
        1 этаж
        Кирпич
        • Показать контакты
        • Добавить в избранное
        48 м2
        1 этаж
        Кирпич
        3 100 000 
        64 583 /м2
          1/29
          Таунхаус, Весенний проспект Показать на карте
          Рудничный район, Лесная поляна
          Кемерово
          Предcтавьтe... Вы просыпаетеcь в свoём уютном таунxaусе под пениe птиц. B oкнo пpoникают первые cолнечныe лучи, a зa oкнoм - настoящий лec, a нe cеpые cтeны coседних мнoгoэтажeк. Чувствуeте эту нeпoвтopимую атмосфepу загopоднoгo дoмa?И самоe приятное - никaких компpомиссов! У вас есть всё: и централизованные коммуникации, и продуманная до мелочей планировка, и собственный уголок природы в престижном районе Таёжный.Знаете, что ещё прекрасно? Сейчас вы можете воплотить свою мечту о комфортной жизни с максимальной выгодой.Именно сейчас цена - лучшая на рынке! И если у вас серьёзные намерения , то она может стать ещеприятнее!И представьте радость от бонуса - благородная текила в подарок к вашему новому дому.Магазин и школы в шаговой доступности. В самом экологичной районе города Кемерово, где не бывает режима ''чёрного неба''. Дом с системой ''водный пол'' - круглогодичная тёплая система отопления дома на двух этажах. Продвинутая система вентиляции, в каждой комнате, и система видео наблюдения.Большая часть мебели Остаётся!Просторная кладовая (18кв.м) под террасой, для ваших хобби и сезонных вещей (колёса, санки, плюшки, сноуборд, велосипед и т.д.)Широкий дворой проезд с возможностью парковки 3-х машин. Отсыпано парковочное место.Ухоженная территория, огороженная забором. Высажены деревья, кустарники, гортензия. Мангальная зона с тандыром, барбекю, и печь под казан. Установленна раковина с горячей и холодной водой.Просторная, уютная терраса.Натуральное, каменное оформление площадки под бассейн, шезлонги для комфортного отдыха. Атмосферная, ночная подсветка участка, для самых уютных вечеров. Идеальное место для семейных праздников и встреч с друзьями.Удачное расположение квартиры, окна со стороны входа выходят на лужайку и дорогу, не в окна соседей!116 кв.метро совершенства, где каждая деталь работает на ваш комфорт и престиж.Забронируйте эксклюзивный просмотр уже сегодня. Количество таких уникальных предложений ограниченно.Ваш идеальный дом ждёт именно Вас!ВАЖНО! ЦЕНЫ ВЫРАСТУТ:Обратите внимание: при снижении ключевой ставки Центрального банка стоимость недвижимости в этом престижном районе вырастет кратно. Это связано с ростом спроса на качественное жилье и увеличением доступности ипотечных программ. Сейчас — идеальный момент для выгодной покупки! Код пользователя: 93823Номер в базе: 7856792
          116 м2
          2 этажа
          • Показать контакты
          • Добавить в избранное
          116 м2
          2 этажа
          17 900 000 
          153 912 /м2
            1/12
            Дом, Покатная Показать на карте
            Рудничный район, Шахта Северная пос.
            Кемерово
            Продам в рудничном районе индивидуальный жилой дом кирпичный постройки -2013 год , общая площадь дома-168,8 кв.м , крепкий комфортный и с изолированными комнатами и мансардой ,теплый дом ,толстые стены , 1 й этаж-гостиная , кухня , просторный сан /узел , в доме высокие потолки натяжные -2,65 м , в доме , три изолированные спальни , строили дом для себя , материалы качественные ,сухой большой подвал , высокий фундамент -4 метра .Водоснабжение -центральное ,септик , гараж , 2 теплицы, земля в собственности-10 соток , на участке детская игровая зона , новая беседка. Вокруг новая современная застройка, инфраструктура развита в 300 метрах находиться ТЦ ''Северная Звезда '', новая школа N 46 , новый детский садик , остановки общественного транспорта-автобус, трамвай . Место уютное , тихое и спокойное. Торг уместен.
            168 м2
            2 этажа
            Кирпич
            • Показать контакты
            • Добавить в избранное
            168 м2
            2 этажа
            Кирпич
            10 000 000 
            59 242 /м2
              1/40
              Коттедж, Утренняя Показать на карте
              Рудничный район, Лесная поляна
              Кемерово
              Загородное поместье рядом с тайгой и с собственным прудом.Загородный элитный коттедж в жилом районе Лесная поляна представляет собой не просто недвижимость, а целый мир, где переплетаются городская жизнь и природная гармония. Этот дом — символ баланса между комфортом и уединением, между современностью и традициями.Местоположение: Расположение в Рудничном районе Кемерово, в 8 километрах от моста на улице Терешковой, идеально сочетает близость к городской инфраструктуре и тишину природы. Город рядом, но его шум не проникает сюда, создавая ощущение изоляции от суеты. Это место напоминает о том, что даже в городской суете можно найти уголок для размышлений и покоя.Дом: Кирпичный дом площадью 742,1 кв. м. — это не просто жилище, а пространство для жизни, творчества и отдыха. Жилая площадь в 209,5 кв. м. позволяет каждому члену семьи найти своё место, а качественное строительство и европейский ремонт создают атмосферу уюта и комфорта. Этот дом — отражение стремления человека к гармонии и красоте.Земельный участок: 65,4 соток земли, оформленные в стиле ландшафтного дизайна, — это не просто территория, а пространство для гармонии с природой. Хвойные и лиственные деревья, кустарники, беседки у костра создают атмосферу уюта и спокойствия. Баня и веранда добавляют тепла и комфорта, а собственный пруд с рыбой напоминает о связи с природой.Функциональность и комфорт: Дом и участок продуманы до мелочей, чтобы обеспечить максимальный комфорт и функциональность. Три этажа, 4е спальные комнаты, гостиная, холл, сауна, бассейн и другое — всё это создаёт пространство для жизни и отдыха. Это место, где каждый найдёт что-то для себя, будь то отдых у камина, занятия спортом или просто прогулки.Заключение: Загородный коттедж в особой привилегированной зоне жилого района Лесной поляне — это не просто недвижимость, а воплощение мечты о гармонии и комфорте. Это место, где можно найти баланс между городской жизнью и природой, между современностью и традициями. Здесь каждый день напоминает о том, что жизнь — это не только суета, но и возможность наслаждаться каждым моментом, находясь в гармонии с собой и окружающим миром.
              742 м2
              3 этажа
              Кирпич
              • Показать контакты
              • Добавить в избранное
              742 м2
              3 этажа
              Кирпич
              197 000 000 
              265 463 /м2
                1/50
                Коттедж Показать на карте
                Рудничный район, Новый
                Кемерово
                Купля Продажа Загородного дома, объект недвижимости в городе Кемерово. Продам загородный дом в прекрасное место в поселке Новом (Кардиоцентр). • Поселок находится в Рудничном районе города Кемерово, с заездом через Кемеровский Кардиологический диспансер.• Отличное месторасположение, в городской черте, но проживание в тихом спокойном месте без шума машин и проезжих частей.• К коттеджу круглогодичная подача воды и электричество. • Основное отопление газовое, дополнительно установлено электрическое и печное.• Отличный дом построен с использование монолитно-кирпичных технологий с железобетонными перекрытиями, общей площадью 451,1 кв.м., пригоден для круглогодичного проживания. • Прекрасно оформлен земельный участок, общей площадью 15 соток. На территории посажаны различные хвойные и лиственные деревья. Перед домом, в гуще растительности, выстроен каменный водопад, где можно отдохнуть в прохладном месте. За коттеджем игровая зона, баня, бассейн и котельная. Везде, где это необходимо, тротуарная плитка.• Первый этаж составляет 147,6 кв.м., второй 156,4 цокольный этаж 147,1 кв.м. При необходимости можно облагородить мансардный этаж.• На первом этаже располагаются 2е комнаты, гостиная, столовая, кухня, хозяйственная комната, санузел, прихожая и холл. Выход на веранду осуществляется через гостевую комнату.• На втором этаже 4и комнаты, огромный холл, туалет, хамам.• На цокольном этаже располагаются игровые зоны, комната отдыха и несколько помещений для хранения вещей.• Есть круглогодичный проезд.• Рядом на постоянном проживании живут соседи.Документы готовы. В собственности более 5и лет, один договор.
                451 м2
                2 этажа
                Кирпич
                • Показать контакты
                • Добавить в избранное
                451 м2
                2 этажа
                Кирпич
                25 500 000 
                56 528 /м2
                  1/37
                  Дом, СНТ Труженик территория, 3а Показать на карте
                  Рудничный район
                  Кемерово
                  Мечтаете иметь дом в лесу в центре города? Это реально! Предлагаю вашему вниманию НОВЫЙ добротный, качественный и долговечный дом 2023 года постройки в Рудничном районе за Кардиоцентром. Просторный дом 2 этажа, 3 уровня. Общая площадь 283, 6м.кв. В планировке предусмотрено: 5 комнат + кухня - гостиная. Заведен газ. Материал стен - сибит на 400 мм. Произведено армирование по периметру. Фундамент ленточный на сваях, Цоколь высотой 3 метра. Плиты-перекрытия из бетона. Высота потолков на 1 этаже 3,25 м. на втором - до 4 м.Установлены качественные панорамные окна Веко. Крыша покрыта мягкой кровлей. Отопление: на 1 этаже теплые полы, на 2 этаже батареи отопленияВ доме электричество 15 квт. ( до 380Вт), подведен газ. Просторный гараж с глубокой смотровой ямой высотой 3метра.На участке скважина, септик (5 куб. метров).Земельный участок 10 соток, правильной прямоугольной формы. С со второго этажа открывается прекрасный панорамный вид на смешанный лес. Вы будете просыпаться и засыпать с пением птиц, встречать там рассветы.Дом построен очень качественно, ''для себя'', с соблюдение технических норм на всех этапах строительства, которые можно увидеть на фотографиях.Вы сможете сделать ремонт, о котором давно мечтали. Звоните, смотрите и покупайте этот дом.В нем вам обязательно будет уютно, спокойно и комфортно!
                  283 м2
                  2 этажа
                  Кирпич
                  • Показать контакты
                  • Добавить в избранное
                  283 м2
                  2 этажа
                  Кирпич
                  10 000 000 
                  35 261 /м2
                    1/27
                    Дом, Невельская, 9 Показать на карте
                    Рудничный район, Боровой
                    Кемерово
                    Основные характеристики дома- Площадь: 102 кв.м.- Подполье: 9,5 кв.м, 2 отдельных, для хранения овощей и солений.- Планировка: кухня, гостиная, 3 спальни, прихожая, санузел с тёплым полом.- Отопление: кочегарка, котёл 'Будэрос', индивидуальная регулировка в каждой комнате, экономия угля (2-3 ведра в сутки в морозы).- Ремонт: капитальный, гипсокартон, фасадная сетка, новая медная проводка.- Каркас и стены: прочный деревянный каркас, отделка деревом, утеплённый фасад.- Крыша: кровельное железо 1,2 мм. Инфраструктура участка (21 сотка)- Сад, ягодники, теплицы.- Теплица 310 м (поликарбонат, ворота для мотоблока).-Погреб благоустроен, бетонная лестница, выложен кирпичом, стены засыпаны золой, утеплены пенопластом в полиэтилене укреплены бетонной стеной, 4 светильника, полки, сетка на полу .- Баня 20 кв.м. (парилка и моечная раздельно).- Навес для авто и техники (с гаражными воротами).- Курятник и помещение для молодняка птицы.- Хозблок и помещения для животных (30 кв.м.)- Столярная мастерская 70 кв.м. (отапливаемая котлом 'Клондайк').- Угольная кладовая и хозяйственные помещения. Коммуникации и расположение- Кабельное ТВ, высокоскоростной интернет.- Шаговая доступность до остановки автобуса и электрички.- Центральная улица, рядом магазины, детские сады, школа. Преимущества сделки с агентством 'Самолет Плюс'- Полное юридическое сопровождение.- Помощь в оформлении ипотеки на выгодных условиях.- Быстрое оформление документов без скрытых платежей.- Консультации 24/7 (с 9:00 до 21:00). ИтогДом и участок полностью готовы к проживанию, все коммуникации и постройки выполнены качественно. Отличный вариант для семьи, ценящей комфорт, уединение и возможность ведения подсобного хозяйства. Агентство гарантирует прозрачность и безопасность сделки.samoletplus-1315232
                    102 м2
                    1 этаж
                    • Показать контакты
                    • Добавить в избранное
                    102 м2
                    1 этаж
                    6 000 000 
                    58 824 /м2
                      1/42
                      Дом, Минский переулок, 10 Показать на карте
                      Рудничный район
                      Кемерово
                      Пpeкраснoe предложение для тeх, ктo ищет уютный и функционaльный дом.Дом 2000 года постройки:пpoсторные 2 комнaты, в 3-ей сделан санузел (18,6м+10,8м+9м) и кухня 10мcанузел с душевой кабиной и водoнaгреватeлемвыгребная яма 3 кольцакрыша металлическая профлист (перекрывали в 2020году)трубы все меняли летом 2025, есть счетчикиотопление: тен электрический и печное (трубы), есть еще обогреватель дополнительныйпогреб просторный и глубокий, выложен кирпичом, есть удобная лестница спускаться Ha теppитории нaxодитcя:уютнaя баня (предбанник, парилка)для автолюбителей можно рядом с домом убрать часть забора и сделать въезд, чтобы парковать машинупогреб (6м), выложен кирпичомтеплица 18мугляркастайка с полками и дровницейсад: яблоня, виноград, боярка, калина, 4 вишни, пихта Это отличный выбор для тех, кто ценит комфорт, функциональность и уют. Не упустите возможность стать владельцем этого замечательного дома!Сопровождение от АН 'Самолёт Плюс': Поможем оформить ипотеку, даже без первоначального взноса Проведём сделку с гарантией юридической чистоты Возьмём в зачёт вашу недвижимость (трейд-ин) Бесплатные консультации по новостройкам и переездуЗвоните с 9:00 до 21:00 — покажем квартиру, подскажем варианты и поможем с оформлением.АН 'Самолёт Плюс' — 14 лет на рынке недвижимости Кемерово. Надёжность. Забота. Результат.samoletplus-1315718
                      62 м2
                      1 этаж
                      • Показать контакты
                      • Добавить в избранное
                      62 м2
                      1 этаж
                      3 490 000 
                      55 929 /м2
                        1/36
                        Таунхаус, Кедровый бульвар, 22 корп. 4 Показать на карте
                        Рудничный район, Лесная поляна
                        Кемерово
                        Что ж!)Как от сердца отрываю)Таунхаус, где все создавалось по домашнему и с любовью)Если у Вас есть дети, то берем не думая! Во-первых есть где спрятаться, когда все достали))Разделение на этажность это невероятное преимущество) Дети играют наверху , взрослые гуляют внизу !!Два санузла, чтобы всем хватило места)Теплый пол для уютных зимних вечеров за просмотром любимых фильмов Терраса и участок- это отдельная любовь сУтром завтрак в приятной обстановке, днем загораем на шезлонге, кушаем фрукты и плаваем в бассейне!Бассейн большой , можно плавать на матрасе) Идет вместе с тауном)Тайга за окном в шаговой доступности!Аромат стоит превосходный особенно в летнее и вечернее времяВыходишь на террасу, в руках бокал просекко ! на столе вкусный сыр наслаждаемся.Расположение просто идеальное Клевые соседи, тоже большое преимущество!По мебели все обсуждается)Тамбур, так же большое хранение под террасой. Летний полив, для газона и туй Еще растут кусты пионов, невероятные и сортовые. Ну это любовь Есть разумный торг!!!Рассматриваем и обмен на 3-х комнатную квартиру с доплатой !Жду в гости, пить чай на террасе и обсуждать все вопросы
                        99 м2
                        2 этажа
                        Монолит
                        • Показать контакты
                        • Добавить в избранное
                        99 м2
                        2 этажа
                        Монолит
                        16 700 000 
                        168 687 /м2
                          1/17
                          Дом, Охотников, 32а Показать на карте
                          Рудничный район, Боровой
                          Кемерово
                          Я собственник. Продам дом в рудничном районе, дом на 2 хозяина у каждого отдельная территория и вход. Соседи очень тихие. Вокруг тишина. В доме три комнаты + не большой кухонный уголок. Отопление печное, но можно поставить котел. Центральное водоснабжение — всегда есть вода высокого качества. Площадь участка — 15 соток — простор для отдыха, сада или возможного расширения, можно всё что угодно делать. Растет вишня, ранетка. Есть банька не новая но очень жаркая. Есть гараж кирпичный, не маленький, новая углярка строилась в октябре прошлого года. Есть хоз. Постройки. В огороде летний водопровод. По счетчикам выходят копейки. В доме есть подпол обложенный кирпичом, за домом есть глубокий погреб.РИЭЛТОРОВ просьба просто так не беспокоить. Если есть покупатель звоните.Продажа в связи с переездом в другой регион.В гараже остается профлист для забора, + материал на полы в прихожую. + кирпич.
                          45 м2
                          1 этаж
                          Дерево
                          • Показать контакты
                          • Добавить в избранное
                          45 м2
                          1 этаж
                          Дерево
                          1 570 000 
                          34 354 /м2
                            1/43
                            Дом, Славы, 16 Показать на карте
                            Рудничный район, Шахта Северная пос.
                            Кемерово
                            B продaже проcторный уютный, теплый Дом, в Рудничном райoне по aдрecу ул. Cлавы д.16., не имеющий аналогов поблизости !-219,4 м2, 2-x этажный, 6 прocтopных кoмнaт.-Земeльный учacток на 16 cоток ( в собственности)-Электричecтво цeнтpальное-Bодопровод цeнтpальный-Гараж для парковки автомобиля и хранения инвентаря-Придомовая территория благоустроена-В доме современный ремонт в едином стиле, с хорошими отделочными материалами, остается практически все, необходимое для жизни!-Рядом всё необходимое: школы, детсие сады и учебные заведения, ТЦ и продовольственные магазины.-Дом расположен на 16-ти сотках, что даёт возможность реализовать уличный досуг в любых масштабах: беседка, мангальная зона, зона барбекю, бассейн и т.д- Один взрослый собственник без обремененийИдеален для большой семьи, для тех, кто ценит комфорт, уединение и пространство.samoletplus-1315603
                            219 м2
                            2 этажа
                            • Показать контакты
                            • Добавить в избранное
                            219 м2
                            2 этажа
                            10 490 000 
                            47 812 /м2
                              1/19
                              Дом, Уньга Показать на карте
                              Рудничный район, Кедровка
                              Кемерово
                              Продается дом в Кедровке 3к+к, кирпич, комнаты изолир, ст/пак, с/у в доме, душ.кабина, Баня. Стайка (можно держать курей, кроликов , есть клетки). Земля в/с, межевание есть. Отопление печное- водяное и ГАЗ. Водопровод -централизованный и СЛИВ тоже -централизованный. Есть гараж металлический. Обременений нет, один взрослый собственник. Рассмотрим варианты обмена на 1к квартиру в Кедровке. Отличное место для проживания, хорошие соседи, чистый воздух, так как рядом Лес. Неподалеку есть Озеро. Торг по факту!
                              55 м2
                              1 этаж
                              Кирпич
                              • Показать контакты
                              • Добавить в избранное
                              55 м2
                              1 этаж
                              Кирпич
                              3 500 000 
                              63 063 /м2
                                1/15
                                Дом, Калужская 2-я, 9а Показать на карте
                                Рудничный район, Промышленновский
                                Кемерово
                                Продам дом 77кв.м.!!! Продаётся уютный, благоустроенный дом 77,1кв.м. 3комнаты, кухня-гостиная, туалет, прихожая. В доме: отопление чугун-котельная отдельно от дома, новая проводка-на всём свой автомат, крыша-профлист, новый фундамент-часть утеплен, зал-кухня-прихожая заливной тёплый пол от отопления, участок выровнен в 2025г.Дом очень тёплый и светлый. Ждёт нового хозяина! Собственник
                                77 м2
                                1 этаж
                                Дерево
                                • Показать контакты
                                • Добавить в избранное
                                77 м2
                                1 этаж
                                Дерево
                                3 500 000 
                                45 396 /м2
                                  1/24
                                  Дом, Рушанская Показать на карте
                                  Рудничный район
                                  Кемерово
                                  Ухоженный участок 8,2 сотки в Рудничном районе (пос. Крутой) Ваша мечта о загородной жизни! Продается облагороженный участок 8,2 сотки в живописном поселке Крутой Рудничного района, предназначенный для индивидуального жилищного строительства (ИЖС). Участок ровный, солнечный, удобрен черноземом и готов к строительству дома вашей мечты или использованию в качестве комфортной дачи.Что вас ждет:* Готовая инфраструктура: На участке уже построен уютный летний домик (20 кв.м.) с комнатой отдыха, кухней и летней верандой. Есть собственный колодец, проведено электричество и установлен септик.* Плодоносящий сад: Посажены и уже плодоносят саженцы виктории, яблони, вишни, сливы, смородины и крыжовника.* Удобное расположение: Поселок Крутой обеспечивает круглогодичный подъезд, а участок идеально подходит как для строительства дома, так и для отдыха на природе.Документы готовы к быстрой сделке! Помощь в оформлении ипотеки! Звоните, чтобы узнать подробности и договориться о просмотре! Код пользователя: 81328Номер в базе: 6505565
                                  20 м2
                                  1 этаж
                                  • Показать контакты
                                  • Добавить в избранное
                                  20 м2
                                  1 этаж
                                  1 300 000 
                                  65 000 /м2
                                    1/40
                                    Коттедж, Волкова, 35 Показать на карте
                                    Рудничный район
                                    Кемерово
                                    Продаётся уютный двухэтажный коттедж из бруса, построенный в 2009 году. Общая площадь составляет 213 кв.м., что позволяет комфортно разместить большую семью. Дом выполнен с евро-ремонтом, что обеспечивает современный и свежий вид интерьера. В шаговой доступности расположен реликтовый сосновый бор, в котором вы сможете осуществлять пешие и велопрогулки, а после прогулки сможете отдохнуть и насладиться вкусным и ароматным кофе или чаем, на ваш вкус, в ближайшем кафе.На первом этаже расположены просторные зал и столовая, прихожая и санузел, идеально подходящие для отдыха и приёма гостей. Есть выход/вход в тепловой узел, гараж и лоджию первого этажа с выходом на улицу.На втором этаже находятся две спальни, гардеробная (бывшая спальня) с выходом на лоджию и большая бильярдная, оформленные с учётом всех необходимых удобств. Кроме того, на втором этаже есть второй санузел с большой удобной ванной и биде.В доме предусмотрены все необходимые коммуникации: центральное отопление от городской ТЭЦ, центральное водоснабжение и канализация, дополнительно/резерв электрокотёл и электронагреватель холодной воды (титан) на 100 литров.Для удобства проживания доступно кабельное/цифровое ТВ (Триколор ТВ и Гудлайн).На участке, в летний период. устанавливается каркасный бассейн на 13 куб.м., который станет отличным местом отдыха для большой компании с детьми.На участке, также, построена баня площадью 24 кв.м. и дровник. Около бани разбит цветник, обустроена зона барбекю и зона отдыха/загорания на шезлонгах.В бане есть печь на дровах, парилка, комната для отдыха с холодильником, телевизором и набором необходимой мебели, горячая/холодная вода и электроотопление на зимний период.На земельном участке имеются все посадки, как плодово-ягодных и овощных культур, так и орех, дубы, хвойные растения и многолетний травяной газон, и большая теплица.Дом и гараж оборудованы охранной сигнализацией и видеонаблюдением по периметру.Рядом находятся две школы и детский сад, что делает расположение дома особенно удобным для семей с детьми.Транспортная доступность обеспечена в любую точку города благодаря близости нескольких остановок общественного транспорта (автобус, троллейбус, трамвай).Земельный участок относится к категории ИЖС, что открывает дополнительные возможности для его использования.В стоимость дома входит вся мебель, бытовая техника, техника для уборки снега и ухаживания за газоном.Просьба: риэлторам и риэлторским конторам Продавца не беспокоить.
                                    213 м2
                                    2 этажа
                                    Дерево
                                    • Показать контакты
                                    • Добавить в избранное
                                    213 м2
                                    2 этажа
                                    Дерево
                                    22 000 000 
                                    103 286 /м2
                                      1/23
                                      Дом, Люблинская Показать на карте
                                      Рудничный район, Боровой
                                      Кемерово
                                      Обратите внимание, что комиссия агентства не входит в стоимость.Продается готовый к заселению одноэтажный кирпичный дом в Рудничном районе. Общая площадь 80 м². Объект предлагает три изолированные комнаты с выполненным косметическим ремонтом и пластиковыми окнами. Для комфортного проживания в холодный сезон в доме установлена гибридная система отопления, включающая твердотопливный и электрический котлы, а также батареи во всех комнатах. Санузел совмещенный. Вся мебель и техника остаются новым владельцам, включая подключенный интернет. Ключевой особенностью является потенциал для расширения жилой площади — существует возможность надстройки второго этажа на готовом каркасе. На участке, полностью огороженном и находящемся в собственности, расположена баня. Расположение дома отличается развитой инфраструктурой: в шаговой доступности находятся детский сад 1, школа 51, отделение ''Почты России'', пункт выдачи Ozon и продуктовые магазины. Остановка общественного транспорта расположена в пяти минутах ходьбы, что обеспечивает удобную транспортную связность. Код пользователя: 143496Номер в базе: 6384257
                                      80 м2
                                      1 этаж
                                      Кирпич
                                      • Показать контакты
                                      • Добавить в избранное
                                      80 м2
                                      1 этаж
                                      Кирпич
                                      4 000 000 
                                      50 000 /м2
                                        1/40
                                        Дом, Загорская Показать на карте
                                        Рудничный район, Боровой
                                        Кемерово
                                        В продаже бревенчатый дом площадью 40 кв.м. в жилом районе Боровой. Расположен на участке 12 соток, всё в собственности, межевание проведено.В доме две комнаты, кухня, санузел, есть веранда, подпол.Две выгребные ямы. Холодная вода - центральная. Горячая вода - два бойлера, в кухне и санузле.Также на участке просторный гараж, углярка, баня, летний домик, стайки, погреба.Очень ухоженный живописный участок!Дом расположен рядом с магазином, детским садом, остановками.Один взрослый собственник. Код пользователя: 11690Номер в базе: 12732047
                                        40 м2
                                        1 этаж
                                        Дерево
                                        • Показать контакты
                                        • Добавить в избранное
                                        40 м2
                                        1 этаж
                                        Дерево
                                        3 090 000 
                                        77 250 /м2
                                          1/39
                                          Дом, 9 Января, 163а Показать на карте
                                          Рудничный район, Новый
                                          Кемерово
                                          Продается просторный элитный коттедж в районе Кардиоцентра.Идеальный дом для большой семьи!Вся мебель и техника остаются!Удобная планировка для комфортной жизни:- 4 изолированные спальни и кабинет — у каждого члена семьи будет личное пространство.- Великолепная гостиная и просторная кухня— здесь так легко собираться всем вместе за столом и принимать гостей!- Настоящая зона релакса: собственная сауна и бассейн с подогревом, зона отдыха — ваш личный SPA-комплекс.- Терраса, на которой организован спортивный зал- Гараж на 2 авто с автоматическими воротами- Вокруг дома высокий забор , также с автоматическими воротами- множество подсобных помещений (прачечная, кладовые) — практичность, в которой учтена каждая мелочь.- Газовая котельная и центральное водоснабжение— гарантия тепла, уюта и бесперебойного комфорта в любое время года.- По периметру дома 16 камер видеонаблюдения и 4 камеры внутри дома - что создает безопасность и комфорт.Дом полностью готов к продаже, продаем в связи с переездом в другой регион.Быстрый выход на сделку.Подойдёт под ипотеку!Звоните для записи на показЭто тот самый дом, где растут счастливые дети и собирается вся семья
                                          382 м2
                                          2 этажа
                                          • Показать контакты
                                          • Добавить в избранное
                                          382 м2
                                          2 этажа
                                          24 000 000 
                                          62 778 /м2
                                            1/40
                                            Дом, Краснореченская Показать на карте
                                            Рудничный район
                                            Кемерово
                                            В живописном месте Рудничного района, по соседству с Сосновым бором продается просторный дом, общей площадью 134 кв.м. Отличный, кирпичный дом построен в 1983 году, расположен на ул. Краснореченская идеальное сочетание городской доступности и загородного спокойствия с великолепием природы.Светлый и уютный дом готов к заселению и ждет своих новых владельцев!Планировка дома:В доме два этажа: подвальный этаж, где расположена котельная с угольным котлом и санузел.На первом, жилом этаже вас встретит прихожая, санузел, отдельная кухня для приготовления пищи, просторная столовая с камином, четыре изолированные комнаты.Большой, ровный и ухоженный участок более 10 соток.Для вашего удобства также имеется гараж, баня.В шаговой доступности от дома: остановки автобусов 23, 40, 64, а также трамваев 10, 3.Средняя школа 16, детские сады. Музей заповедник Красная горка находятся в шаговой доступности от дома, где вы сможете наслаждаться прогулками всей семьей и любоваться чудесными видами со смотровых площадок.
                                            134 м2
                                            2 этажа
                                            Кирпич
                                            • Показать контакты
                                            • Добавить в избранное
                                            134 м2
                                            2 этажа
                                            Кирпич
                                            12 800 000 
                                            95 522 /м2
                                              1/32
                                              Дом, Карачинская Показать на карте
                                              Рудничный район, Боровой
                                              Кемерово
                                              Код объекта: 2151929.Продажа в связи с покупкой квартиры в Рудничном районе, возможно вы хотите обмен с доплатой. Или просто покупка этого замечательного уютного теплого большого дома, для дружной семьи 2 этажа 147.7м2 два входа (дюплекс), 5 комнат от 18 дo 25м2 смежно-изолированные комнаты. Планируется подвод газа в 2027 годуОгород 12 coтoк в собственности, плодовые посадки малина, грядки, теплица, огород ухоженный баня новая ей редко пользуются, так как есть душевая кабина в доме, сан узел в доме, курятник, мecтo пoд парковку минимум на 3 авто, также eсть фундамент 3*6 под гараж. В доме есть подпол, и маленький погреб на улицеРядом двa детских садикa, дo остaновки 5 минут, поликлиника и aптeка, пpoдуктовые магазины Ярче Пятерочка и хоз. магазины, пункты озон и WВ. На транспорте 10 минут до радуги, общественный транспорт ходит часто. Дом из бруса. Документы готовы к продаже. Один собственник.
                                              147 м2
                                              2 этажа
                                              Дерево
                                              • Показать контакты
                                              • Добавить в избранное
                                              147 м2
                                              2 этажа
                                              Дерево
                                              7 599 000 
                                              51 449 /м2
                                                1/10
                                                Дом, Балахонская Показать на карте
                                                Рудничный район
                                                Кемерово
                                                Код объекта: 2003866.Бюджетное предложение в г. Кемерово по адресу Балахонская улица. Этот объект идеален для тех, кто ищет спокойствие и уединение вдали от городской суеты. На участке есть баня,углярка, дровник.Дом тесо-засыпной, с деревянными перекрытиями, печным отоплением в жилом состоянии. Участок площадью 5,5 соток подходит для индивидуального жилищного строительства. Подъезд к участку грунтовый, на участке есть электричество и водоснабжение. Этот дом станет прекрасным выбором для тех, кто ценит тишину и покой. Не упустите свой шанс стать владельцем этого уютного дома! Позвоните нам прямо сейчас, чтобы узнать больше и записаться на просмотр. Мы гарантируем безопасную сделку и юридическую поддержку нашим клиентам. Поможем одобрить ипотеку с сниженной ставкой.
                                                25 м2
                                                1 этаж
                                                • Показать контакты
                                                • Добавить в избранное
                                                25 м2
                                                1 этаж
                                                850 000 
                                                33 465 /м2
                                                  • 1
                                                  • 2
                                                  • 3
                                                  • 4
                                                  • 5
                                                  • Следующая
                                                  Распечатать

                                                  Вместе с этим также ищут:

                                                  Купить дачу в Кемерове Купить дом Кемерове Купить дачный участок в Кемерове Купить садовый участок в Кемерове Купить землю в Кемерове Купить земельный участок в Кемерове Купить коммерческую землю в Кемерове

                                                  🏠 Как купить дом, коттедж в Кемерове на N1?

                                                  • ✔ В поисках объявления о продаже или покупке домов, коттеджей в Кемерове?
                                                  • ✔ На N1 размещены 234 дома, коттеджа
                                                  • ✔ Чтобы купить или продать недвижимость, воспользуйтесь формой поиска, фильтрами или быстрыми ссылками.

                                                  💸 Сколько стоит дом, коттедж в Кемерове?

                                                  • 🟢 Средняя цена продажи домов, коттеджей - 9,49 млн ₽
                                                  • 🟢 Минимальная стоимость за 1 м2: 70,65 тыс ₽

                                                  📚 Какая площадь домов, коттеджей?

                                                  • Наибольшая площадь: 742 м²
                                                  • Минимальная площадь: 20 м²