Дом, Звездная, 10/2 Показать на карте
Мыски
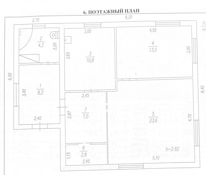
Уютный дом из профилированного бруса 115,9 м², 1 этаж, ИЖСПродается светлый и функциональный дом, выполненный из профилированного бруса. Продуманная планировка и качественная отделка создают комфортное пространство для жизни.Планировка: просторная кухня-гостиная, 3 изолированные жилые комнаты, холл, коридор, совмещенный санузел (санузел в доме).Высота потолков 2,95 м (почти 3 м) — ощущение простора и воздуха.Три выразительных эркера — классическая элегантность фасада и уютные зоны внутри с панорамным обзором.Стены из бруса отшлифованы и окрашены акриловой матовой краской — защита, долговечность и эстетика.Потолок обшит панелями — современно, эффектно и практично в уходе.Светодиодные светильники с управлением с пульта.10 пластиковых окон из 4камерного профиля — тепло- и шумоизоляция.Установлены радиаторы Royal Thermo- идеальные для использования в центральных системах отопления, т.к имеют высокую теплоотдачу.Пол — качественный ламинат, уложенный единой плоскостью без стыков и порогов.Межкомнатные двери с полотнами из натурального шпона светлых тонов (премиумсегмент).Входная дверь — сочетание изысканного дизайна, премиальных материалов и надежной безопасности.Инженерия и коммуникацииОтопление: центральное (угольное). Установлены радиаторы Royal Thermo — прочная сталь и высокая теплоотдача алюминия, подходят для автономных и центральных систем.Водоснабжение: скважина.Горячая вода: Центральная+ бойлер на 100 л.Канализация: центральнаяУчасток и постройкиРовный ухоженный участок ИЖС: плотный пружинистый газон, регулярный уход.Гараж из ФБСблоков с секционными воротами на 2 автомобиля, подведено отопление (радиаторы не установлены).Дополнительно: железный гараж и хозяйственные постройки — можно использовать по своему усмотрению.На участке заготовлен пиломатериал для строительства бани.Двор отсыпан щебнем, удобный широкий подъезд, дорога ровная, зимой регулярно чистится.ДополнительноКатегория земли: ИЖС - СОБСТВЕННОСТЬИпотека возможна.
115 м2
1 этаж
- Показать контакты
- Добавить в избранное
115 м2
1 этаж
10 300 000
88 870 /м2
