Таунхаус, бульвар Солнечный Показать на карте
Рудничный район
Кемерово
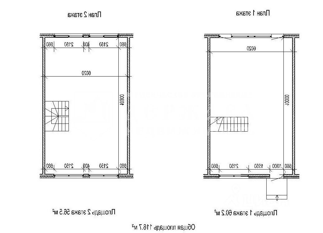
Уютный ТАУНХАУС в экологически чистом районе города Кемерово, ''ЛЕСНАЯ ПОЛЯНА'' Развитая инфраструктура: школа, детский сад, магазины, больница, кафе — всё рядом.Остановка автобуса всего в 10 минутах ходьбы от дома.Качественный ремонт в доме, выполненный дорогостоящими материалами. Итальянская сантехника, кухня оснащена современной бытовой техникой и мебелью премиум-класса. Современные системы освещения и кондиционирования воздуха. Парящие потолки, теплый пол первого этажа.Дом очень чистый, ухоженный и уютный.Построена просторная терраса 18 метров, покрытая древесно-полимерным композитом (ДПК) с нижней зоной для хранения. Рулонный газон, обустроенная дорожка из качественной тротуарной плитки.Место под бассейн размером 4 метра с прорезиненным покрытием.Мангальная зона с мангалом. Вся территория огорожена забором.Прямо с участка есть безопасный выход на дорогу и детскую площадку (которая находится рядом). Спуск выполнен с помощью комфортабельной, большой лестницы, отделанной тротуарной плиткой.Около главного входа расширена асфальтированная дорога для чистоты и большего количества парковочных места.Доброжелательные соседи.Это один из самых тихих, уютных и безопасных районов. Улицы оснащены современными системами видеонаблюдения, что обеспечивает круглосуточную охрану и спокойствие. Код пользователя: 200496Номер в базе: 12008252
98 м2
2 этажа
- Показать контакты
- Добавить в избранное
98 м2
2 этажа
18 600 000
188 450 /м2
