1-к, Строителей бульвар, 60 корп. 3 Показать на карте
Ленинский район
Кемерово
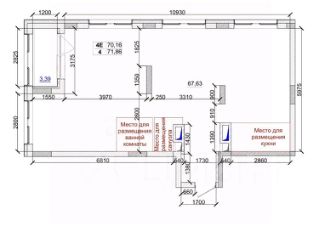
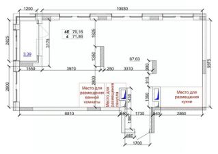
Продам 1к. квартиру неподалеку от ГЦС ''Кузбасс'' (ЖК ''Верхний бульвар''), расположенную по бул. Строителей 60 к.3, 5 из 16, панельный дом (2023 г., застройщик ''Програнд''), не угловая, 32,1/15,4/8,5, с отличным ремонтом: бетонная стяжка, ПВХ-плитка, обои, натяжные потолки (высота - 2,70 м.), стены и полы выровнены, пластиковые стеклопакеты, алюминиевые радиаторы (с регулировочными кранами), с/у совмещенный, керамическая плитка на полу и на стенах, медная подводка (включая межэтажные трубы водоснабжения), пластиковая канализация, лоджия застеклена (алюминиевое остекление).Из мебели и бытовой техники остаются (входят в стоимость, при необходимости): кухонный гарнитур, индукционная варочная панель, электровытяжка, двухкамерный холодильник, электрочайник, обеденный стол, 3 табурета, сплит-система, ЖК-телевизор, тумба под телевизор, журнальный столик, диван, платяной шкаф, комод, стиральная машина (автомат), тумба с раковиной, зеркало в ванной, прихожая.Внутри дома и по периметру установлены камеры видеонаблюдения.Хорошее месторасположение с развитой инфраструктурой. В шаговой доступности различные магазины, ТРЦ, аптеки, прогулочные зоны и пр. В пешей доступности СОШ 91, несколько детских садиков. В 25-и минутах аллея на бул. Строителей, КГАУ им. В.Н. Полецкова, КемГУ, рынок ''Колос'', КГМУ, ГЦС ''Кузбасс'', ТЦ ''Бульвар'', ТЦ ''Сокол'', бассейн ''Сибирь'', РГИСИ, КемГИК, прокуратура КО-Кузбасса, Кемеровский областной суд, в 35-и минутах - парк ''Кузбасский'', ''Гипер Лента'', строительный гипермаркет ''Лемана Про'', ТРЦ ''Променад 2'', КОДКБ им. Ю.А. Атаманова.Легко добраться до районов: Центр, Ленинский, Лесная Поляна, Кировский, Рудничный, ФПК, Южный. При необходимости в шаговой доступности есть автобусные остановки, с которых можно уехать в любой конец города: проспект Ленина, Октябрьский, Ленинградский, Московский, Притомский, Советский, Кузнецкий, Шахтёров, Молодёжный, ул. Кирова, Весенняя, Красноармейская, Дзержинского, 50 лет Октября, Коломейцева, Авроры, Серебряный бор, Нахимова, Дегтярева, Инициативная, Попова, 40 лет Октября, Юрия Двужильного, Космическая, Веры Волошиной, Дружбы, Тухачевского, Терешковой, Волгоградская и многие другие географические точки нашего города.
32 м2
5 / 16 этаж
Панель
- Показать контакты
- Добавить в избранное
32 м2
5 / 16 этаж
Панель
6 000 000
186 916 /м2
