3-к, Ленинградский проспект, 30б Показать на карте
Ленинский район
Кемерово
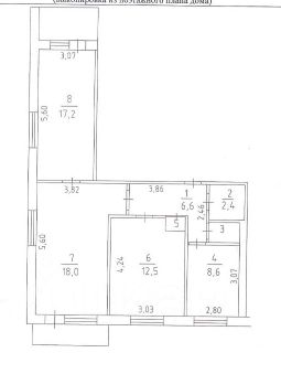
Продажа 3-комнатной квартиры! Одно из лучших предложений по соотношению цена и качество. Квартира общей площадью 66,3 кв. м.ПЛАНИРОВКА И ИНТЕРЬЕР•Просторная кухня площадью 8 кв. м — место, где удобно готовить и собираться всей семьёй.•3 комнаты 17,1 кв. м, 17,1 кв.м. и 12,3 кв. м — комфорт для родителей и детей, прекрасно подойдет для большой дружной семьи!•Балкон площадью 3,2 кв. м, которую можно использовать как зону отдыха или кабинет для работы.•В подарок остаётся, кухонный гарнитур и практически вся мебель в квартире.•Квартира с косметическим ремонтом, можно заходить и жить.ПРЕИМУЩЕСТВА КВАРТИРЫ•Есть отгороженный, совместный, отсек с соседями, где можно хранить коляску и т.д..•Последний этаж — никто не топает над головой.•Окна выходят на обе стороны дома, удобно проветривать. •Дом находится на второй линии, минимум шума и пыли от оживленных магистралей.•Просторная придомовая территория с детской площадкой, наземный паркинг.•Рядом живут спокойные, доброжелательные соседи• 1 взрослый собственник, в собственности более 20 лет.• Без обремнений и арестов, прозрачная история.• Подходит под все виды расчетов.ИНФРАСТРУКТУРА•Практически во дворе дома расположена одна из лучших школ района — Гимназия 71 Радуга с сильным педагогическим составом.•В пешей доступности 5 школ и 5 детских садов.•Для прогулок и отдыха — большой парк Кузбасский - 7 минут пешком.•Рядом есть всё необходимое для комфортной жизни: магазины, торговые центры, аптеки, кафе, спортивные секции, салоны красоты и пункты выдачи заказов.________________________________________Кому подойдёт квартира•Дружной семье с детьми — не маленькая кухня и три изолированные спальни позволяют каждому иметь своё пространство.________________________________________Эта квартира сочетает в себе простор, удобство, выгодную цену и отличное расположение.Звоните и приходите на просмотр, чтобы лично убедиться в её преимуществах.
66 м2
10 / 10 этаж
Панель
- Показать контакты
- Добавить в избранное
66 м2
10 / 10 этаж
Панель
5 800 000
87 481 /м2
